EasyManua.ls Logo

Lennox G61MPV?36B?045 - Page 44

Lennox G61MPV?36B?045
72 pages
Print Icon
To Next Page IconTo Next Page
To Next Page IconTo Next Page
To Previous Page IconTo Previous Page
To Previous Page IconTo Previous Page
Loading...
Page 44
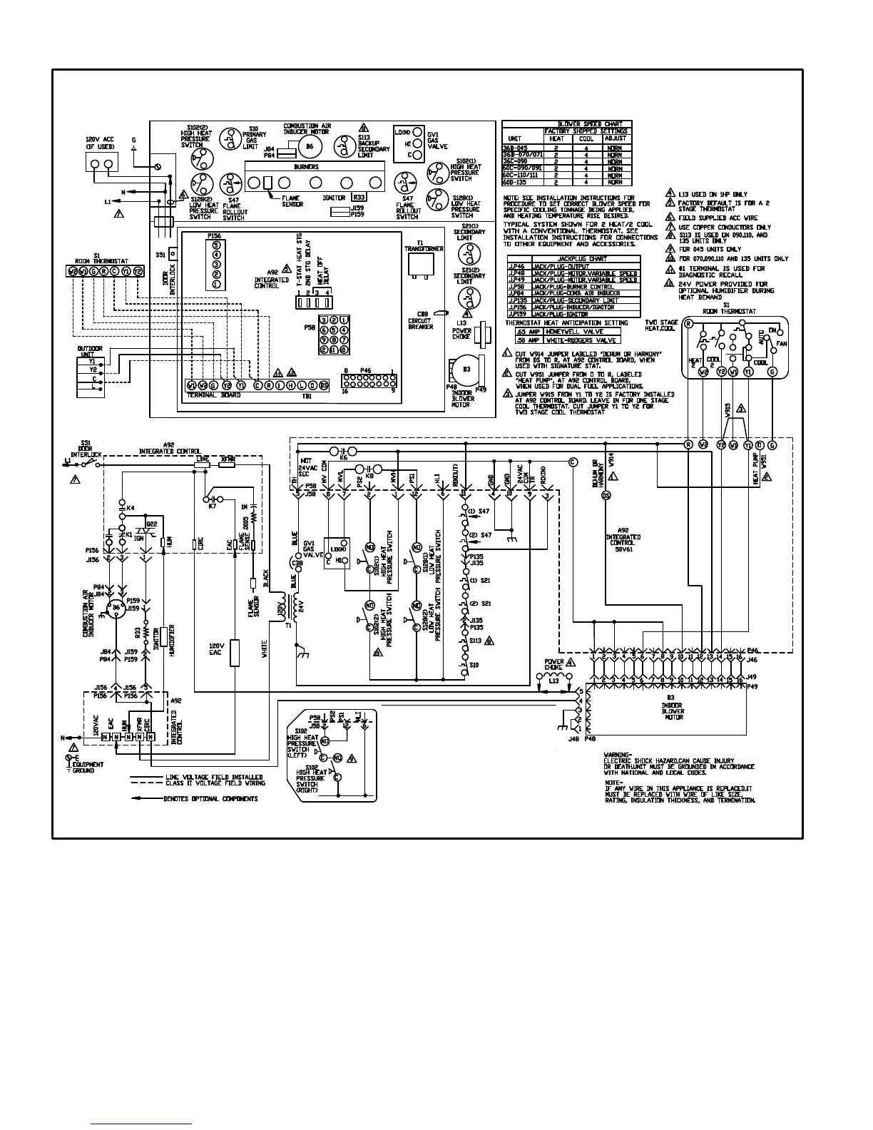
TYPICAL G61MPV WIRING DIAGRAM
FIGURE 58

Related product manuals