EasyManua.ls Logo

Lennox GCS16-1353 - XI- WIRING DIAGRAMS AND OPERATING SEQUENCE; B1 and C1 Diagrams (GCS16-823;-953)

Lennox GCS16-1353
80 pages
Print Icon
To Next Page IconTo Next Page
To Next Page IconTo Next Page
To Previous Page IconTo Previous Page
To Previous Page IconTo Previous Page
Loading...
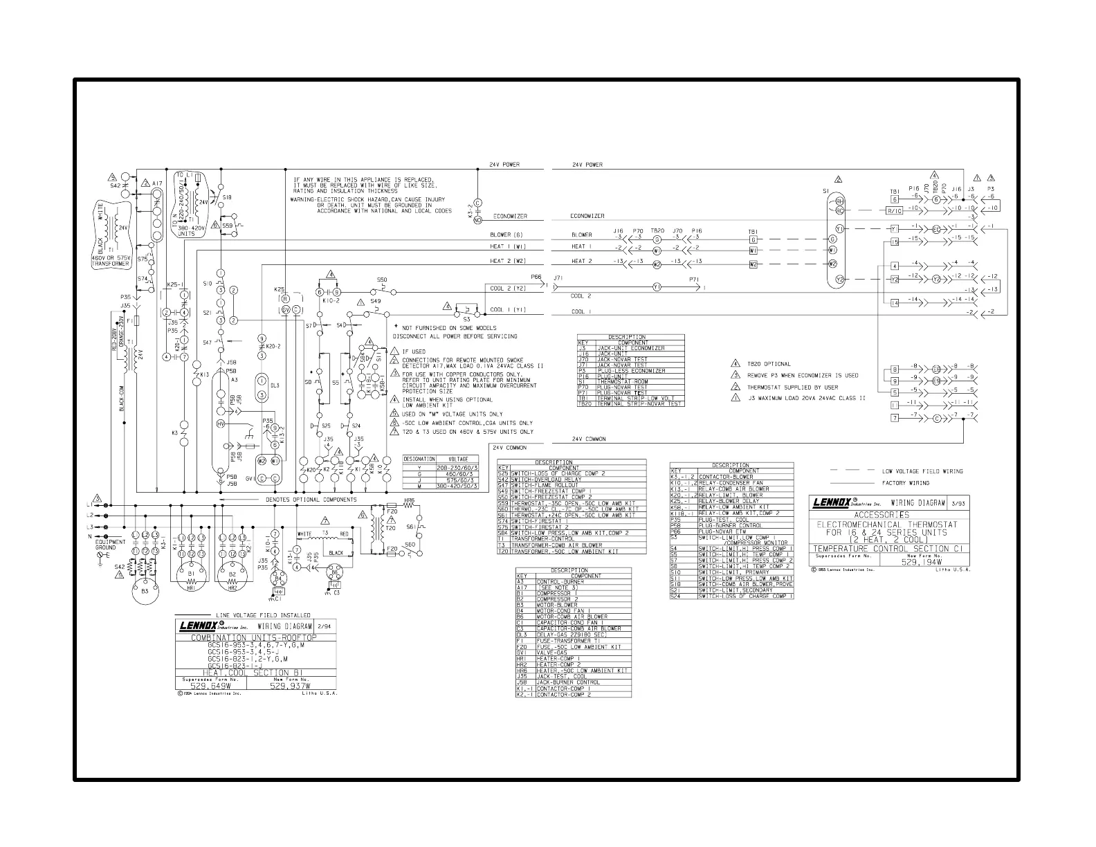
XI-WIRING DIAGRAMS AND OPERATING SEQUENCE
Page 64
B1 diagram
with C1 diagram
GCS16-823 or -953 with basic standard thermostat

Related product manuals