EasyManua.ls Logo

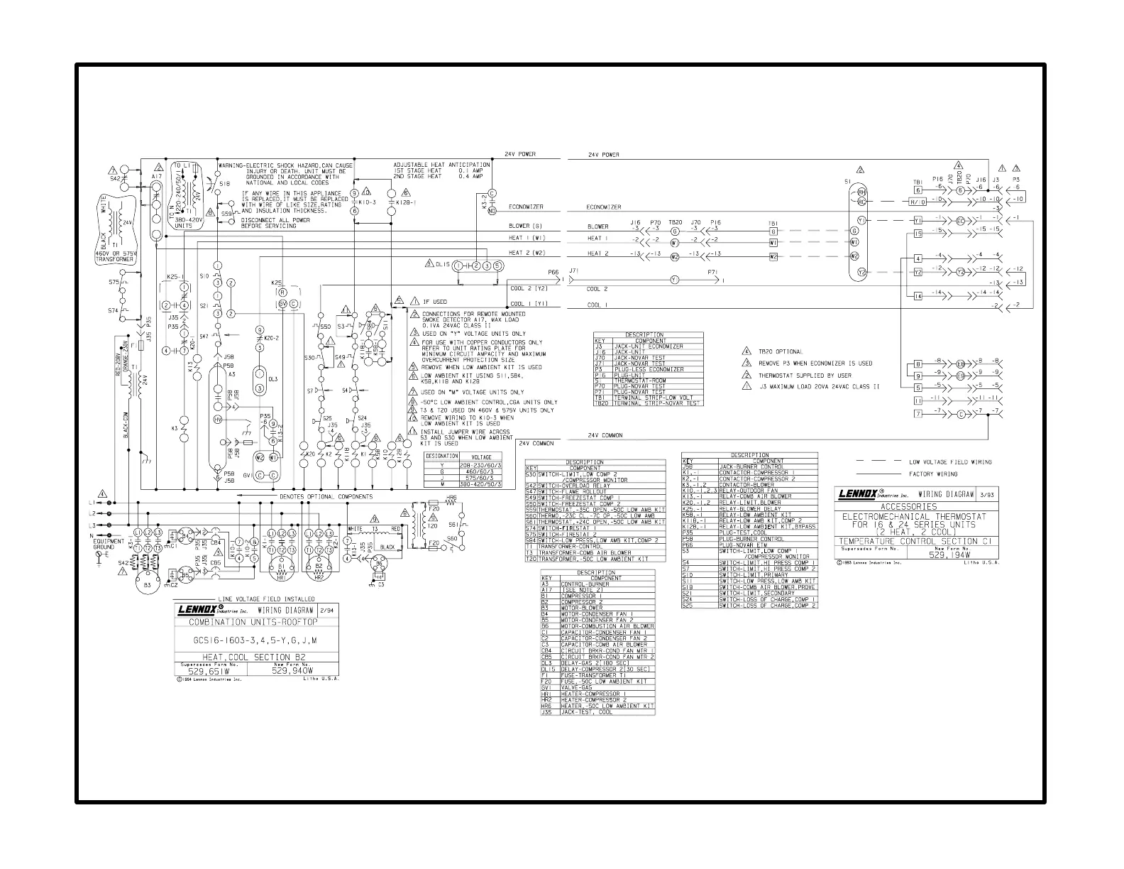
Lennox GCS16-1353 - B2 and C1 Diagrams (GCS16-1603); B2 and C1 Diagrams with Standard Thermostat (GCS16-1603)

Lennox GCS16-1353
80 pages
To Next Page IconTo Next Page
To Next Page IconTo Next Page
To Previous Page IconTo Previous Page
To Previous Page IconTo Previous Page
Loading...
Page 68
B2 diagram
with C1 diagram
GCS16-1603 with basic standard thermostat

Related product manuals