EasyManua.ls Logo

Lennox GCS16-1853-330 - Page 66

Lennox GCS16-1853-330
80 pages
Print Icon
To Next Page IconTo Next Page
To Next Page IconTo Next Page
To Previous Page IconTo Previous Page
To Previous Page IconTo Previous Page
Loading...
Page 66
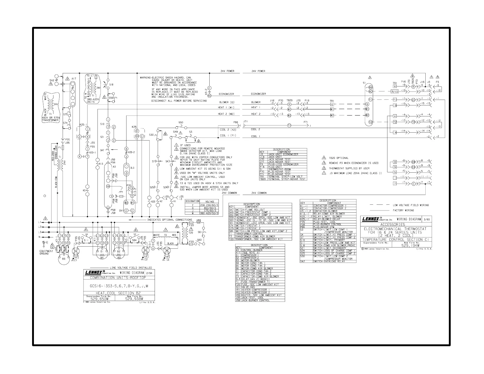
B2 diagram
with C1 diagram
GCS16-1353 with basic standard thermostat

Related product manuals