EasyManua.ls Logo

Lennox GCS16-1853-330 - Page 70

Lennox GCS16-1853-330
80 pages
Print Icon
To Next Page IconTo Next Page
To Next Page IconTo Next Page
To Previous Page IconTo Previous Page
To Previous Page IconTo Previous Page
Loading...
Page 70
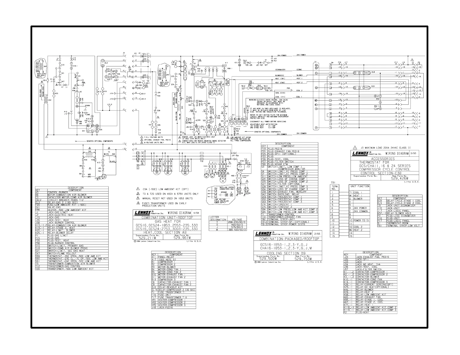
B9 and A8diagrams
with C1 diagram
GCS16-1853 with basic standard thermostat

Related product manuals