EasyManua.ls Logo

Lennox GCS16-2553-470 - Page 72

Lennox GCS16-2553-470
80 pages
Print Icon
To Next Page IconTo Next Page
To Next Page IconTo Next Page
To Previous Page IconTo Previous Page
To Previous Page IconTo Previous Page
Loading...
Page 72
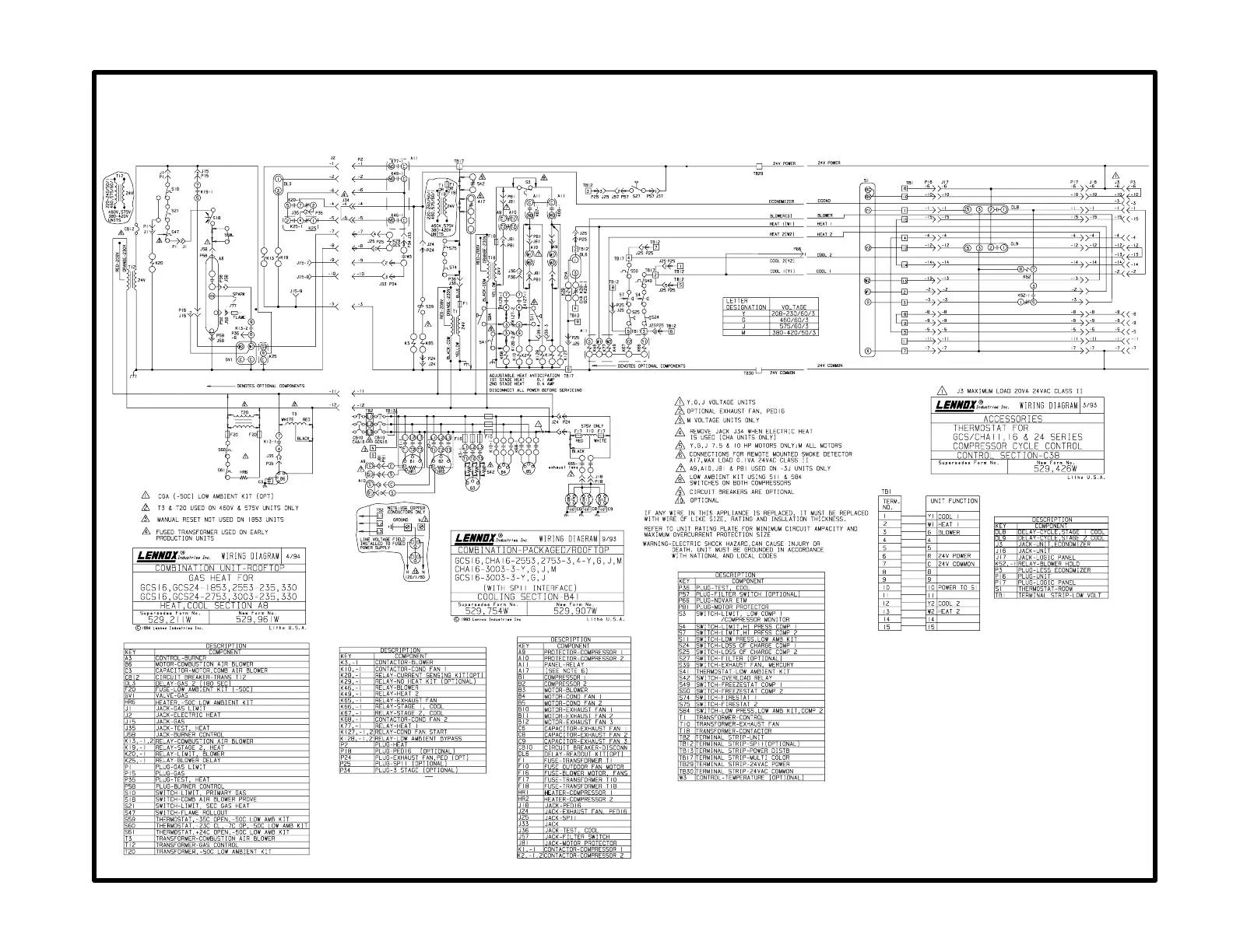
B41 and A8diagrams
with C1 diagram
GCS16-2553-235, GCS16-2753-235
or GCS16-3003-235
with basic standard thermostat

Related product manuals