EasyManua.ls Logo

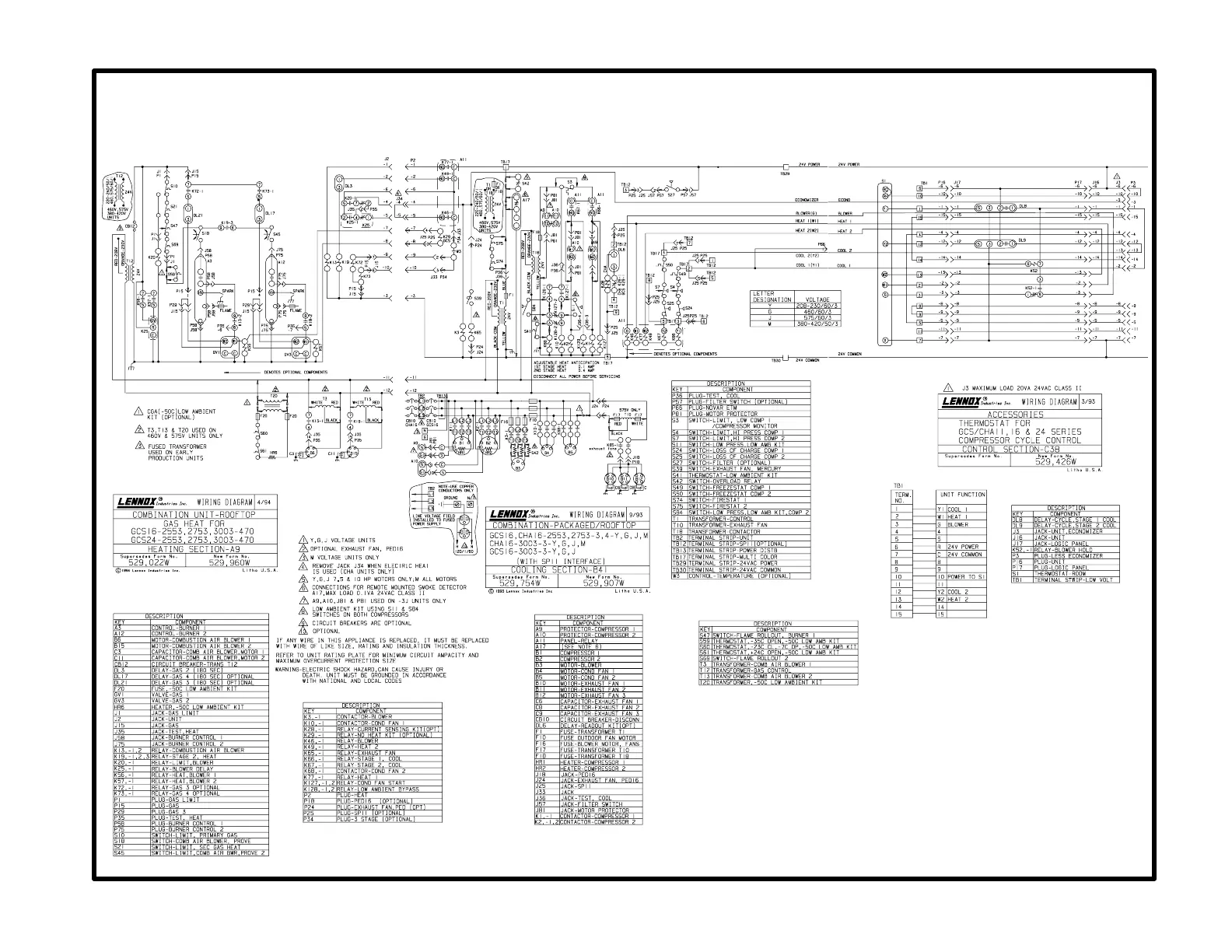
Lennox GCS16-2553-470 - C1 DIAGRAM WITH B41 and A9 DIAGRAMS Electromechanical Thermostat Connected to GCS16-2553, -2753-470 or GCS16-3003-470 with basic standard thermostat

Lennox GCS16-2553-470
80 pages
Print Icon
To Next Page IconTo Next Page
To Next Page IconTo Next Page
To Previous Page IconTo Previous Page
To Previous Page IconTo Previous Page
Loading...
Page 74
B41 and A9diagrams
with C1 diagram
GCS16-2553-470, GCS16-2753-470
or GCS16-3003-470
with basic standard thermostat

Related product manuals