EasyManua.ls Logo

Lennox GCS16-2753-235

Lennox GCS16-2753-235
80 pages
To Next Page IconTo Next Page
To Next Page IconTo Next Page
To Previous Page IconTo Previous Page
To Previous Page IconTo Previous Page
Loading...
Page 68
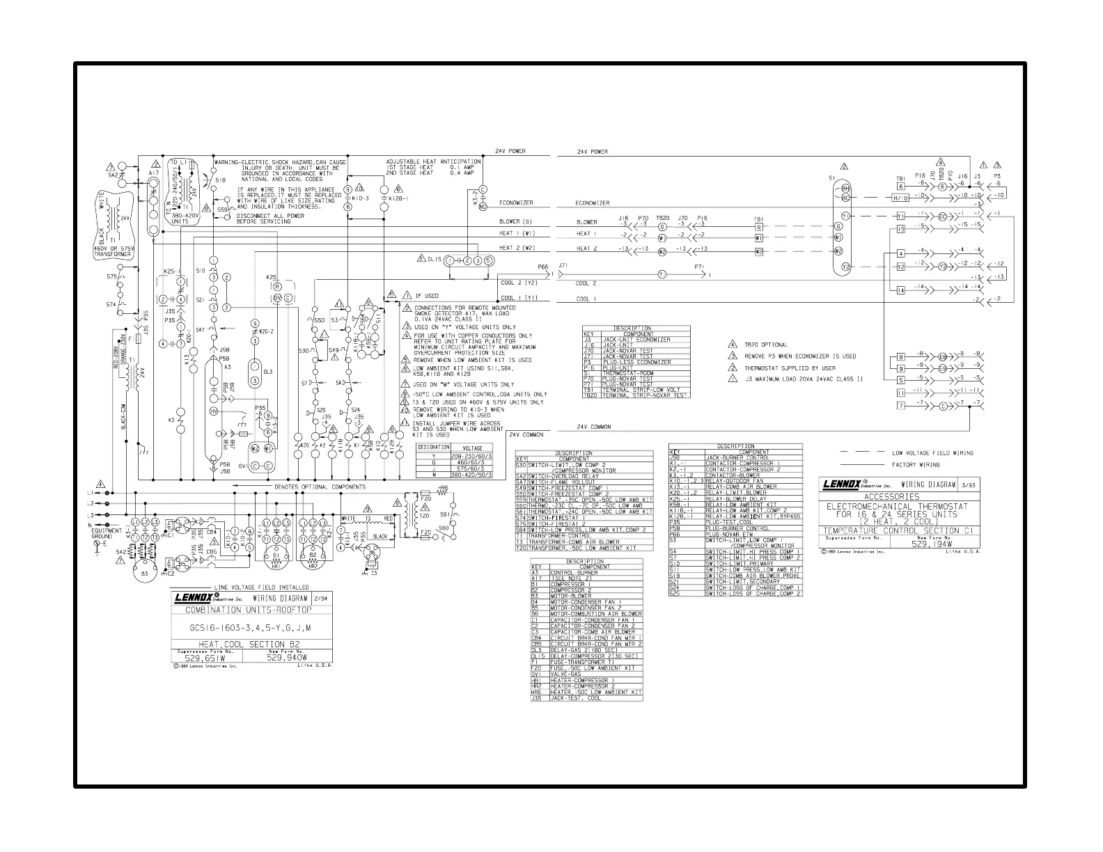
B2 diagram
with C1 diagram
GCS16-1603 with basic standard thermostat

Related product manuals