EasyManua.ls Logo

Lennox GCS16-2753-235

Lennox GCS16-2753-235
80 pages
To Next Page IconTo Next Page
To Next Page IconTo Next Page
To Previous Page IconTo Previous Page
To Previous Page IconTo Previous Page
Loading...
Page 70
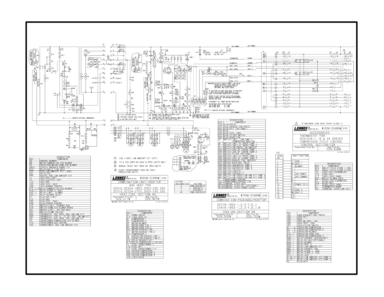
B9 and A8diagrams
with C1 diagram
GCS16-1853 with basic standard thermostat

Related product manuals