EasyManua.ls Logo

Lennox GCS16-2753-235

Lennox GCS16-2753-235
80 pages
To Next Page IconTo Next Page
To Next Page IconTo Next Page
To Previous Page IconTo Previous Page
To Previous Page IconTo Previous Page
Loading...
Page 74
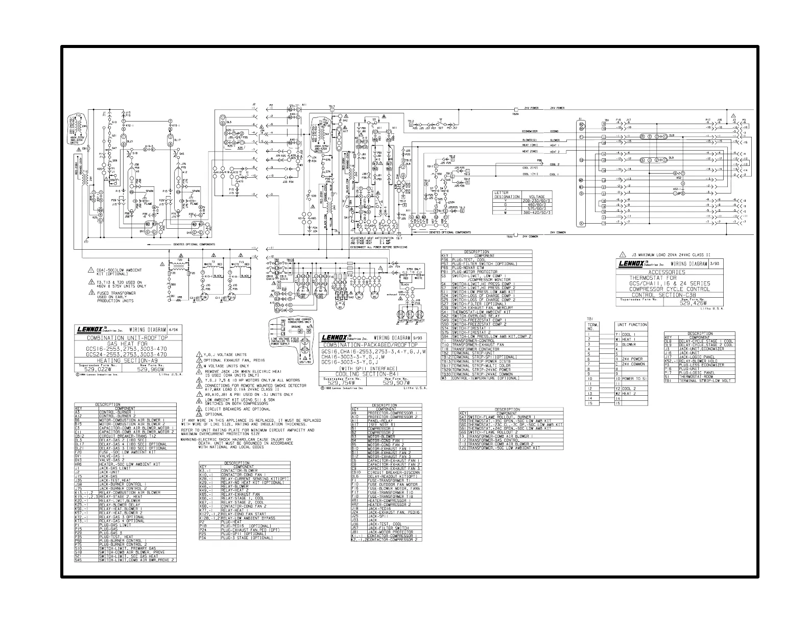
B41 and A9diagrams
with C1 diagram
GCS16-2553-470, GCS16-2753-470
or GCS16-3003-470
with basic standard thermostat

Related product manuals