EasyManua.ls Logo

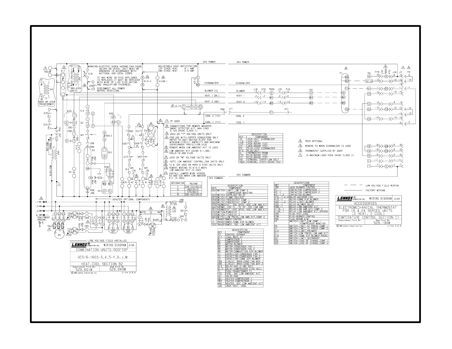
Lennox GCS16-2753-470 - C1 DIAGRAM WITH B2 DIAGRAM; Electromechanical Thermostat Connected to GCS16-1603 with basic standard thermostat

Lennox GCS16-2753-470
80 pages
Print Icon
To Next Page IconTo Next Page
To Next Page IconTo Next Page
To Previous Page IconTo Previous Page
To Previous Page IconTo Previous Page
Loading...
Page 68
B2 diagram
with C1 diagram
GCS16-1603 with basic standard thermostat

Related product manuals