EasyManua.ls Logo

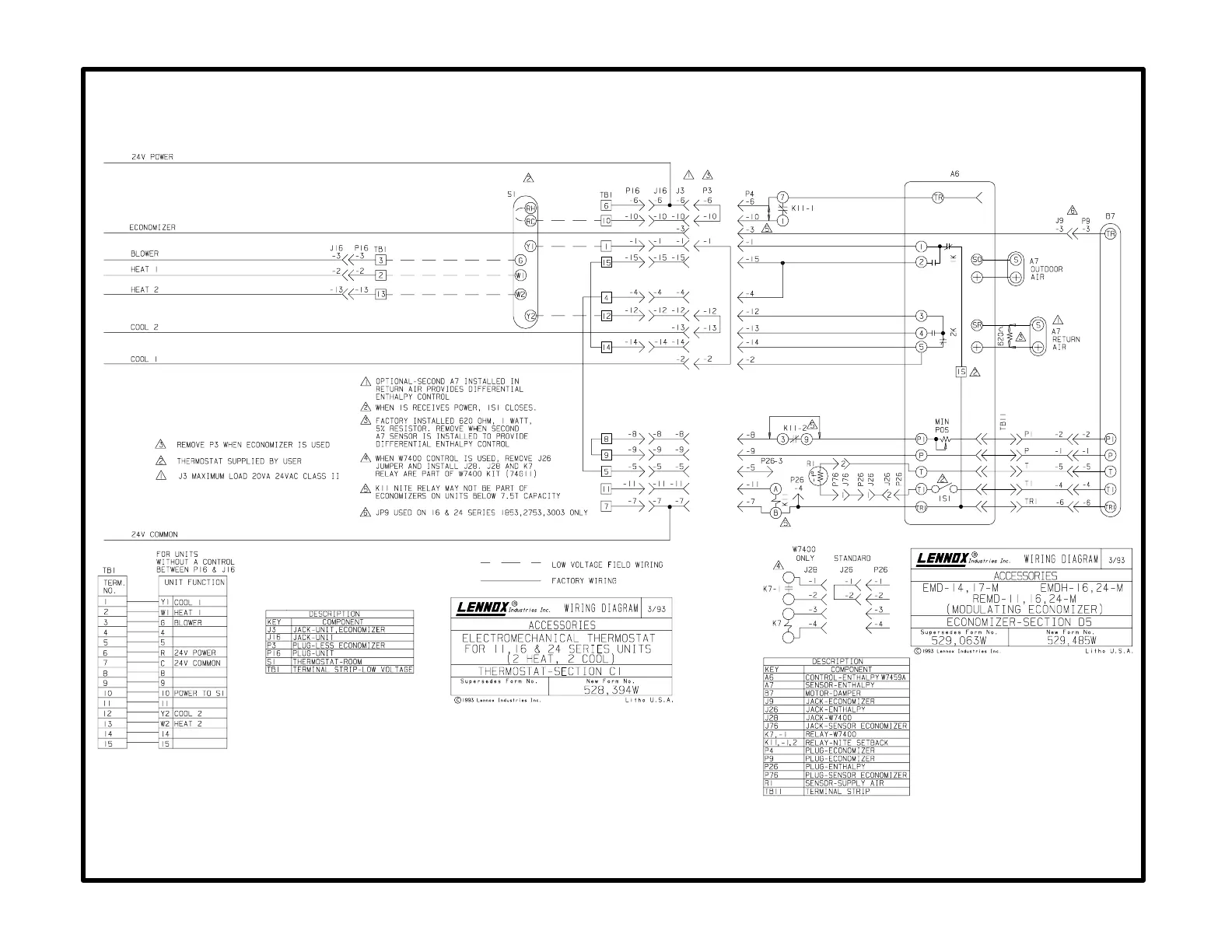
Lennox GCS16-2753-470 - C1 diagram with D5 diagram; electromechanical thermostat with modulating economizer

Lennox GCS16-2753-470
80 pages
Print Icon
To Next Page IconTo Next Page
To Next Page IconTo Next Page
To Previous Page IconTo Previous Page
To Previous Page IconTo Previous Page
Loading...
C1diagram
electromechanical thermostat with modulating economizer
with D5 diagram
Page 76

Related product manuals