EasyManua.ls Logo

Lennox GCS16-823

Lennox GCS16-823
80 pages
To Next Page IconTo Next Page
To Next Page IconTo Next Page
To Previous Page IconTo Previous Page
To Previous Page IconTo Previous Page
Loading...
Page 72
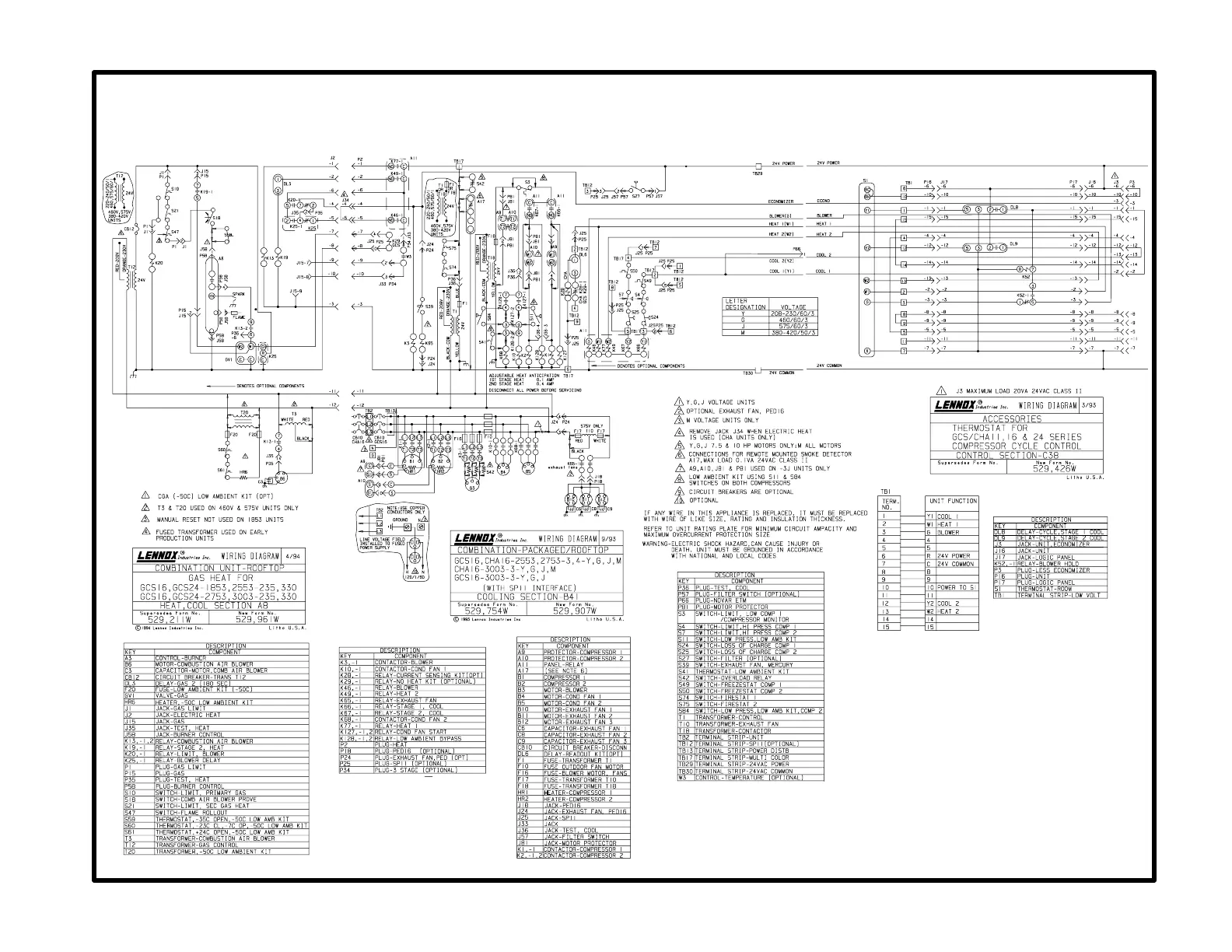
B41 and A8diagrams
with C1 diagram
GCS16-2553-235, GCS16-2753-235
or GCS16-3003-235
with basic standard thermostat

Related product manuals