EasyManua.ls Logo

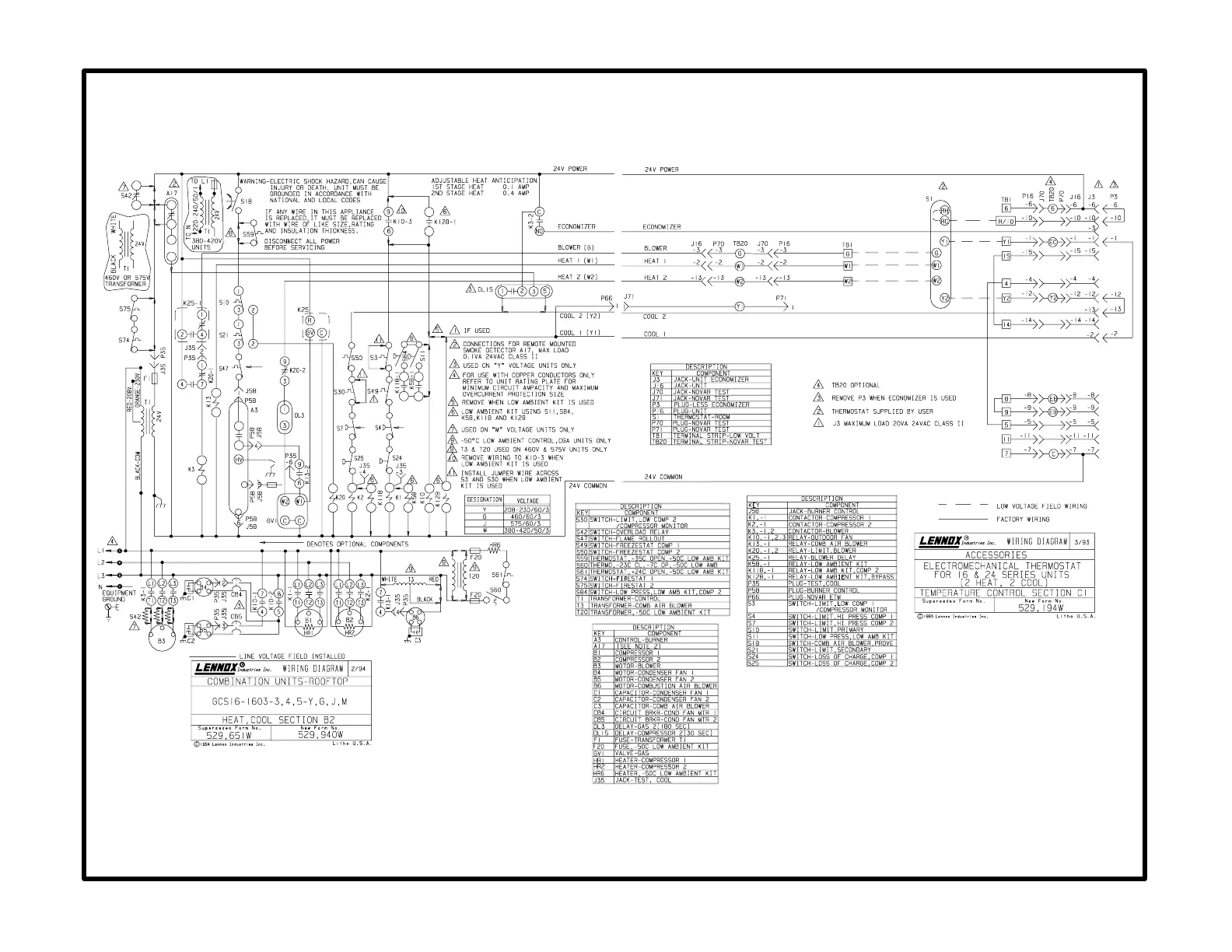
Lennox GCS16-953 - Wiring Diagrams (Continued); B2 Diagram with C1 Diagram for GCS16-1603 Models

Lennox GCS16-953
80 pages
To Next Page IconTo Next Page
To Next Page IconTo Next Page
To Previous Page IconTo Previous Page
To Previous Page IconTo Previous Page
Loading...
Page 68
B2 diagram
with C1 diagram
GCS16-1603 with basic standard thermostat

Related product manuals