EasyManua.ls Logo

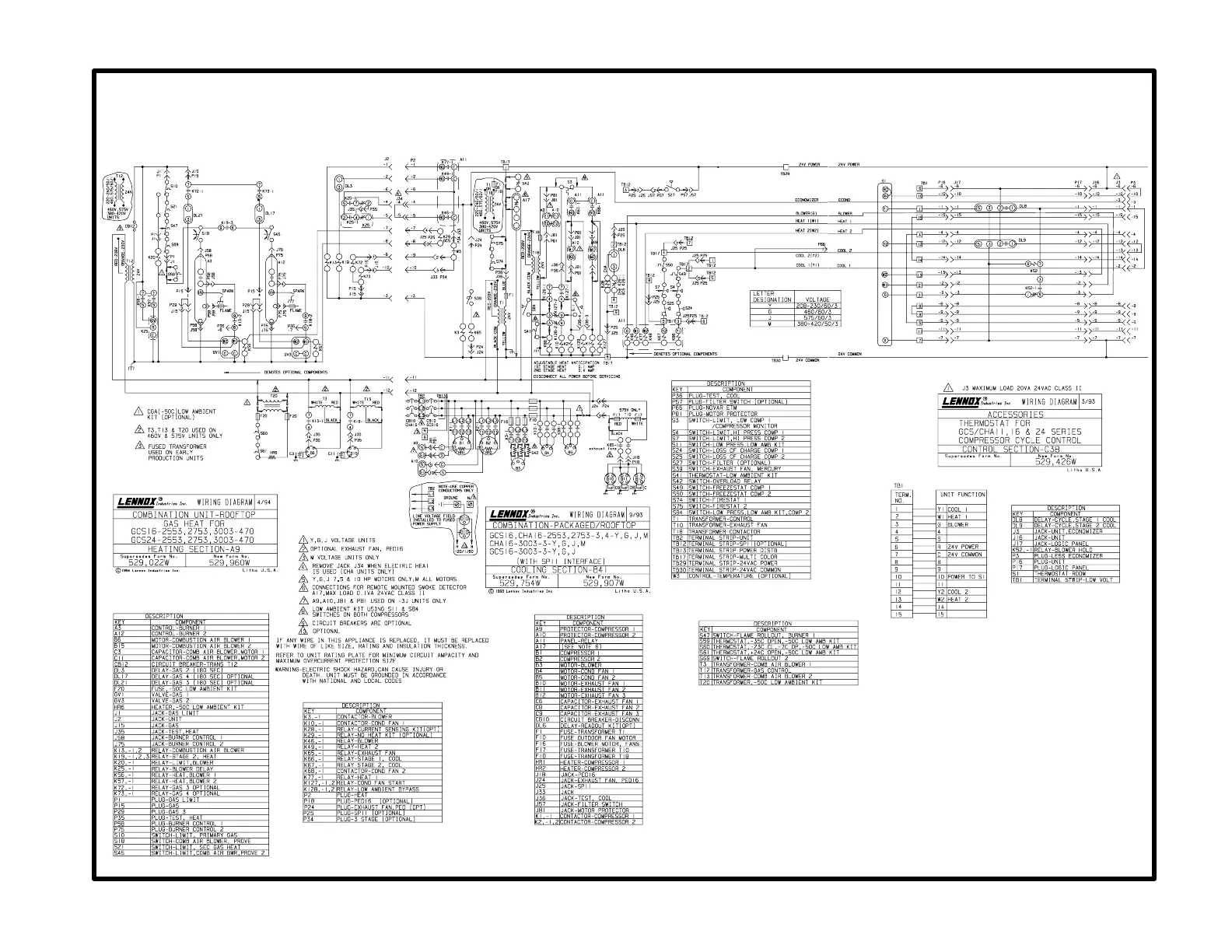
Lennox GCS16-953 - Wiring Diagrams (Continued); C1 Diagram with B41 and A8 Diagrams for GCS16-2553 to -3003

Lennox GCS16-953
80 pages
Print Icon
To Next Page IconTo Next Page
To Next Page IconTo Next Page
To Previous Page IconTo Previous Page
To Previous Page IconTo Previous Page
Loading...
Page 74
B41 and A9diagrams
with C1 diagram
GCS16-2553-470, GCS16-2753-470
or GCS16-3003-470
with basic standard thermostat

Related product manuals