EasyManua.ls Logo

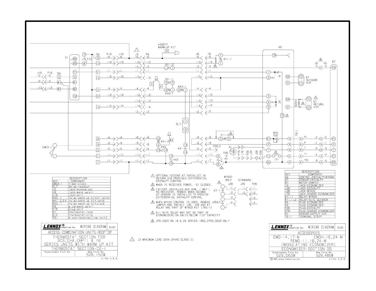
Lennox GCS16-953 - Wiring Diagrams (Continued); C2-1 Diagram with D5 Diagram - Thermostat, Economizer, and Warm-Up; Economizer and Warm-Up Kit Wiring Connections

Lennox GCS16-953
80 pages
Print Icon
To Next Page IconTo Next Page
To Next Page IconTo Next Page
To Previous Page IconTo Previous Page
To Previous Page IconTo Previous Page
Loading...
C2-1 diagram
electromechanical thermostat with modulating economizer and warm-up
with D5 diagram
Page 78

Related product manuals