EasyManua.ls Logo

Lennox LCH Series

Lennox LCH Series
90 pages
To Next Page IconTo Next Page
To Next Page IconTo Next Page
To Previous Page IconTo Previous Page
To Previous Page IconTo Previous Page
Loading...
Page 83
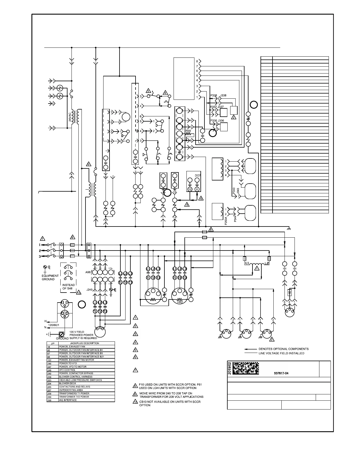
LCH092-152U STAGED SUPPLY AIR, WITH BYPASS, BELT DRIVE BLOWER
1
2
3
4
New Form No.
Supersedes
WIRING DIAGRAM
(ULTRA) LCH/LGH - 092U, 094U, 120U, 122U, 152U -
Y, G, J, M
02/19
COOLING -MSAV WITH BYPASS
SECTION B REV 1
537617-03
537617-04
J11
KEY
COMPONENT
A55
PANEL, MAIN
B1 COMPRESSOR 1
B2 COMPRESSOR 2
B3
MOTOR, BLOWER
B4
MOTOR, OUTDOOR FAN 1
B5
MOTOR, OUTDOOR FAN 2
B10
MOTOR, EXHAUST FAN
C6
CAPACITOR, EXHAUST FAN
CB8
CIRCUIT, BREAKER
HR1
HEATER, COMPRESSOR 1
HR2
HEATER, COMPRESSOR 2
J11
JACK, GFI RECEPTICLE
K1,1 CONTACTOR, COMPRESSOR 1
K2,1 CONTACTOR, COMPRESSOR 2
K3, 1 CONTACTOR, BLOWER
K1911
RELAY, OUTDOOR FAN 1
K651,2 RELAY, EXHAUST FAN
K1941
RELAY, OUTDOOR FAN 2
RT17
SENSOR, OUTSIDE AIR TEMPERATURE
S4
SWITCH, LIMIT HI PRESS COMP 1
S5
SWITCH, LIMIT HI TEMP COMPRESSOR 1
S8
SWITCH, LIMIT HI TEMP COMPRESSOR 2
S11
SWITCH, LOW PRESS, LOW AMBIENT KIT COMP
S48
SWITCH, DISCONNECT
S49
SWITCH, FREEZESTAT COMP 1
S87
SWITCH, LOW PRESS, COMPRESSOR 1
T1
TRANSFORMER, CONTROL
S48
B10
C6
K65-2
9
6
J18
P18
K65-1
7
4
K1-1
B1
HR1
K2-1
B2
J132
P132
T1
CB8
J268
P268
P268
J268
24 VAC POWER
24 VAC COMMON
P269
T43
T43
T43
CB31
L41
L42
J269
S49 AND S50 ARE PART OF 5VDC CIRCUIT
J268
P268
P268
J268
GND
24 VAC COMMON
F4/F61
F4
FUSE, UNIT
TB2
CB10
A1
PANEL, AUTOMATED LOGIC CONTROL (ALC)
T43
TRANSFORMER, REHEAT
TB2
TERMINAL STRIP, UNIT
A96 CONTROL INVERTER
K203,1,2 RELAY, INVERTER START/RUN
CB10
CIRCUIT BREAKER, MAIN DISCONNECT, UNIT
DO7 USED ON UNITS WITH HUMIDITROL TO POWER
EXHAUST FANS. DO6 PROVIDES POWER TO K65 ON
UNITS WITH NO HUMIDITROL
K65 CONTROLLED BY A1, IN TARGET ALC APPLICATIONS ONLY
L42
L41
TXV VALVE SOLENOID,
TXV VALVE SOLENOID,
CB31
CIRCUIT BREAKER, TRANSFORMER T43
K3
A
B
K203-1
1
7
RST
WVU
G
G
P249
K202
K3-1
B3
J246
P246
K202,1 CONTACTOR, POWER TO MOTOR
B4
J86
P86
B5
T5
B21
K203
A
B
K65
A
B
A55
P265
A55
P265
J265E
B
K194
A
B
S11
K1
A
B
B
J265A
J265C
J263
P265
J265A
J267A
RT17
J264
K2
A
B
K191
A
B
P265
J265C
P265
J265E
A55
P267
P265
A55
P264
P265
P263
SD
STF
C
B
2
5
K203-2
6
9
P248
J248
P265
J265A
A96
DO6
P298
P298D
J259
(ODF)PWM 2
(ODF)PWM 3
COM
(IDB)PWM 1/VO
RELAY
COM
FB
20V
A55
S4
S87
S50
S49
T5
TRANSFORMER,
S50
SWITCH, FREEZESTAT COMP 2
B21
MOTOR, OUTDOOR FAN 3
TB13
K191-1
7
1
TB13
TERMINAL STRIP, POWER DISTRIBUTION
J87
P87
J88
P88
K194-1
7
1
T5 USED ON G & J VOLTAGE ONLY
USED ON 094U, 122U, 152U UNITS ONLY
OPTIONAL
K202
A
B
B4
B21
B5
NOTE: FOR USE WITH COPPER CONDUCTORS ONLY.
REFER TO UNIT RATING PLATE FOR MINIMUM CIRCUIT
P333
TSI
GND
+5V
PSI
A55
P342
J342
VO
VCC
GND
A185
A55
TSI
GND
RT37
RT38
J344
S5 S8
F57 F57
F57
FUSE, T5 TRANSFORMER PRIMARY
PC
R55
RESISTOR, VFD LOADING, A96
F10
F10
FUSE, OUTDOOR FAN MOTOR
F61
FUSE, UNIT SCCR OPTION

Other manuals for Lennox LCH Series

Related product manuals