EasyManua.ls Logo

Lennox LF25-400 - Table of Contents LF25-030;105 Compact Unit Dimensions

Lennox LF25-400
22 pages
Print Icon
To Next Page IconTo Next Page
To Next Page IconTo Next Page
To Previous Page IconTo Previous Page
To Previous Page IconTo Previous Page
Loading...
Page 2
2-3/4
(70)
8-3/4
(222)
10-1/2
(267)
4-1/4
(108)
1/2
[13]
1
(25)
21
(533)
1
(25)
A
3-5/8
(92)
C
29
(737)
B
21
(533)
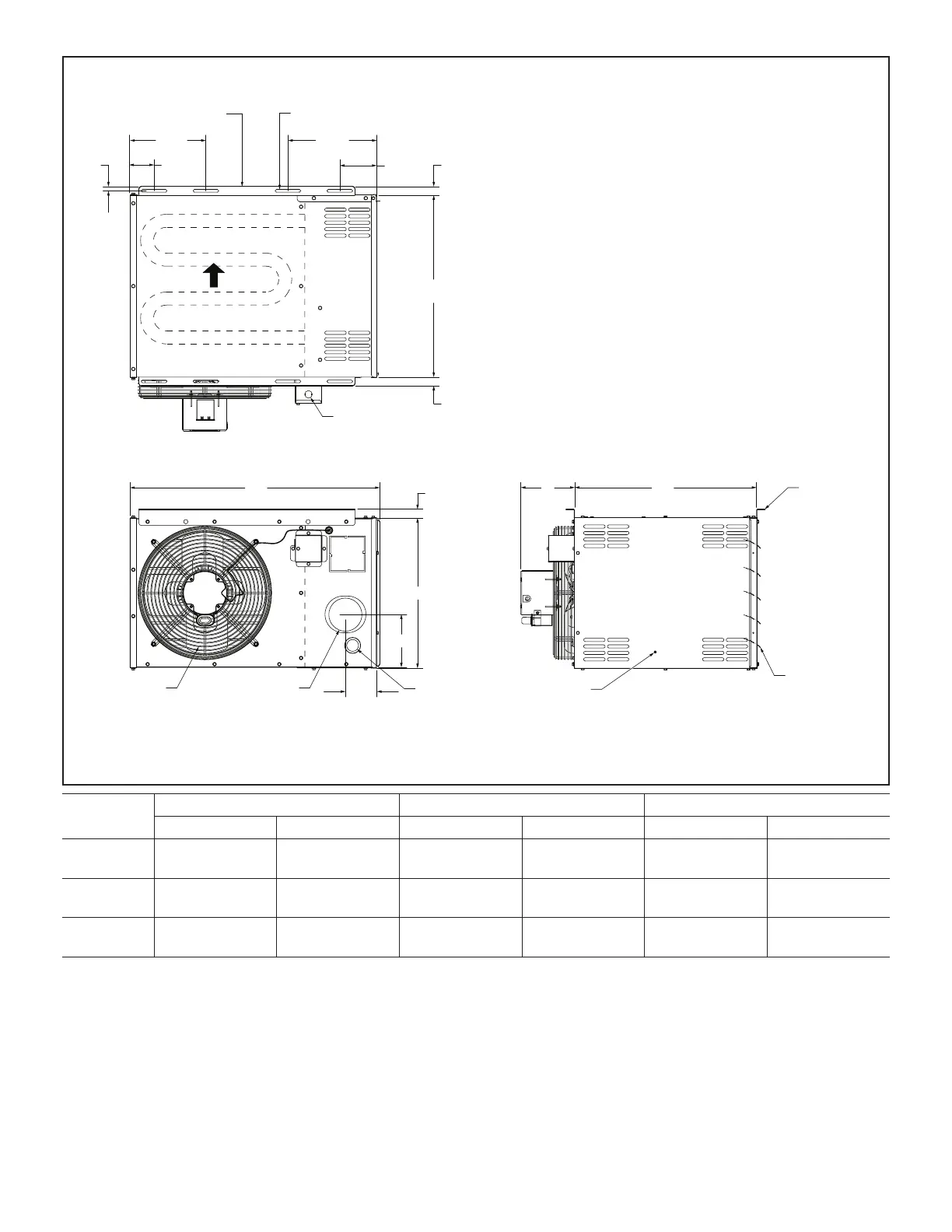
BACK VIEW
FLUE
OUTLET
GAS
INLET
DIRECT
DRIVE FAN
ELECTRICAL
INLET
BRACKETS (2)
HANGING
TOP VIEW
HEAT EXCHANGER
AIR
FLOW
MOUNTING SLOTS (Typical)
5/16 x 3 Inches (8 x 76 mm)
HANGING
BRACKETS (2)
SERVICE
ACCESS
PANEL
SIDE VIEW
ADJUSTABLE
LOUVERS
1
(25)
LF25-030 / 105 DIMENSIONS - Inches (mm)
Model
No.
A B C
in. mm in. mm in. mm
LF25-030A
LF25-045A
12-3/8 314 6-1/2 165 3-7/8 98
LF25-060A
LF25-075A
17-1/2 445 6-1/4 159 6-1/8 156
LF25-090A
LF25-105A
23 584 7-7/8 200 9-1/8 232

Related product manuals