EasyManua.ls Logo

Lennox LF25-400 - LF25-250;400 Standard Unit Dimensions

Lennox LF25-400
22 pages
Print Icon
To Next Page IconTo Next Page
To Next Page IconTo Next Page
To Previous Page IconTo Previous Page
To Previous Page IconTo Previous Page
Loading...
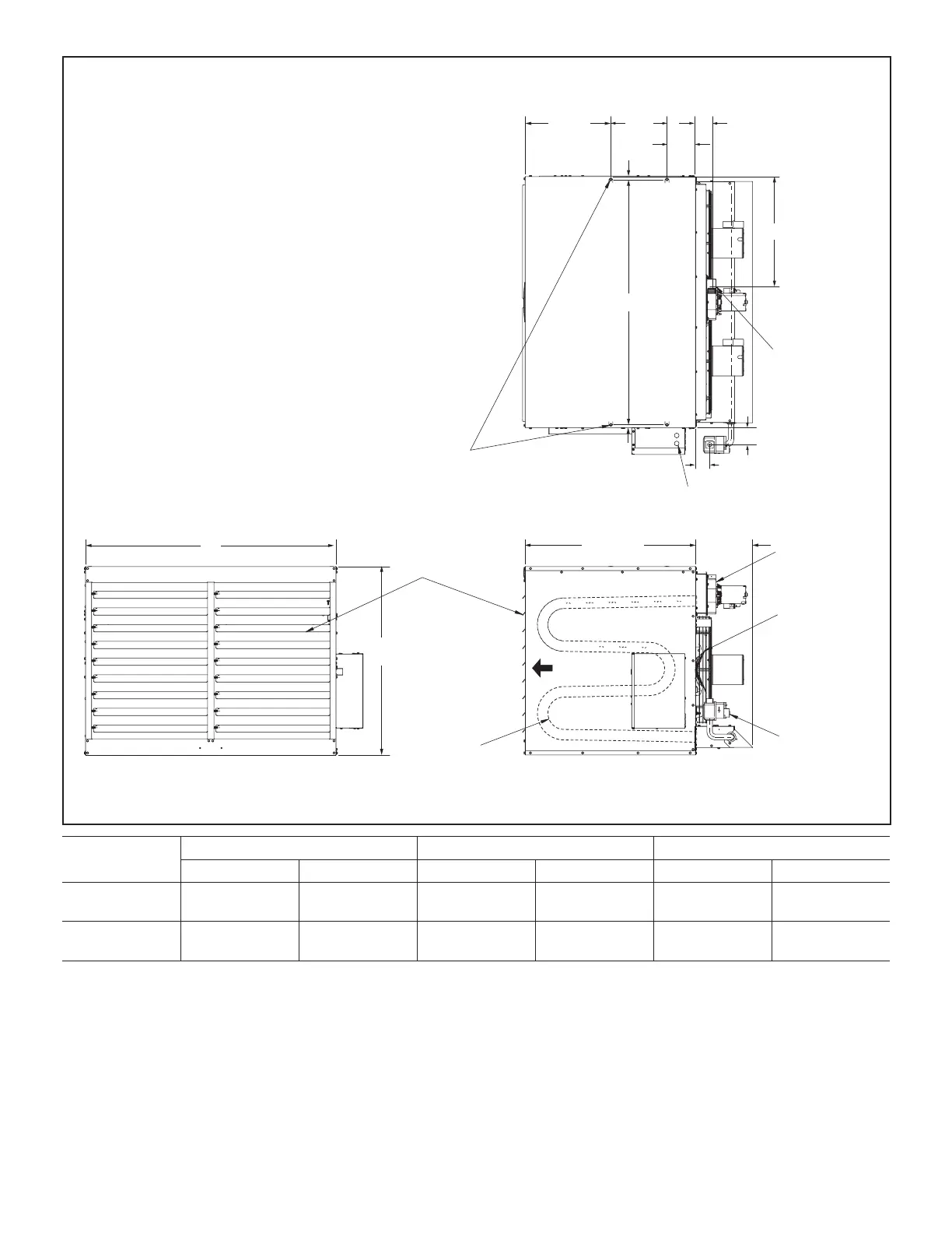
Page 5
A
C
B
ADJUSTABLE
LOUVERS
TOP VIEW
ELECTRICAL INLETS
FLUE OUTLET
(4) 3/8-16 MOUNTING NUTS
FOR UNIT SUSPENSION
FRONT VIEW
AIR
FLOW
SIDE VIEW
COMBUSTION AIR
INDUCER
DIRECT DRIVE FAN
GAS VALVE
HEAT
EXCHANGER
16 (406)
1/2 (13)
31-7/8 (810)
10-5/8
(270)
5-3/8
(137)
10-1/2
(267)
1/2 (13)
35-1/4
(895)
3
(76)
2-5/8 (67)
3-1/8 (79)
LF25-250 / 400 DIMENSIONS - Inches (mm)
Model
No.
A B C
in. mm in. mm in. mm
LF25-250
LF25-300
37-5/8 956 36-1/2 927 15-7/8 403
LF25-350
LF25-400
47 1194 45-3/4 1162 20-1/2 521

Related product manuals