EasyManua.ls Logo

Lennox LF25-400 - LF25-125;200 Standard Unit Dimensions

Lennox LF25-400
22 pages
Print Icon
To Next Page IconTo Next Page
To Next Page IconTo Next Page
To Previous Page IconTo Previous Page
To Previous Page IconTo Previous Page
Loading...
Page 4
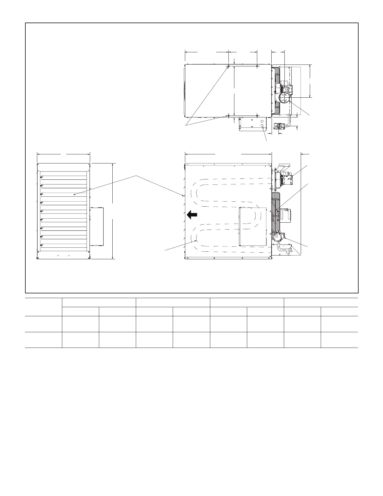
A
C
D
ADJUSTABLE
LOUVERS
FRONT VIEW
COMBUSTION AIR
INDUCER
DIRECT DRIVE FAN
GAS VALVE
SIDE VIEW
HEAT
EXCHANGER
AIR
FLOW
ELECTRICAL INLETS
FLUE OUTLET
TOP VIEW
(4) 3/8-16 MOUNTING NUTS
FOR UNIT SUSPENSION
16 (406)
1/2 (13)
5-3/8
(137)
B
1/2 (13)
31-7/8 (810)
10-5/8
(270)
35-1/4
(895)
10-1/2
(267)
2-1/2 (64)
3-1/8 (79)
LF25-125 / 200 DIMENSIONS - Inches (mm)
Model
No.
A B C D
in. mm in. mm in. mm in. mm
LF25-125
LF25-150
19-1/2 495 18-1/2 470 12-1/4 311 4-3/4 121
LF25-175
LF25-200
25 635 23-3/4 603 9-1/2 241 3 76

Related product manuals