EasyManua.ls Logo

Lennox LRP14GE36 - LRP14 AC Unit Wiring Diagram

Lennox LRP14GE36
49 pages
Print Icon
To Next Page IconTo Next Page
To Next Page IconTo Next Page
To Previous Page IconTo Previous Page
To Previous Page IconTo Previous Page
Loading...
Page 36
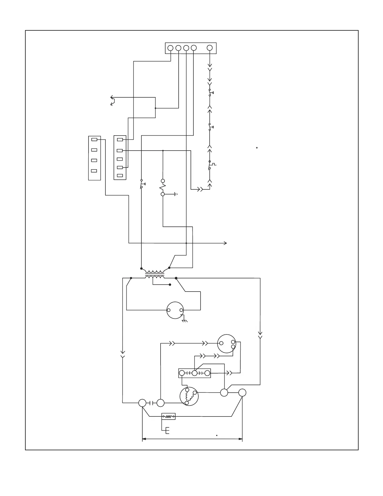
208/230-1-60
POWER SUPPLY WITH MIN.
75 C COPPER WIRE
G
W1
C
R
YEL W/ STRIPE
CONTROL CIRCUIT
WIRING TO BE 24 VOLT,
N.E.C. CLASS 2
L1
T1
T2
L2
C
H
F
OUTDOOR
FAN
MOTOR
C12
DUAL
CAPACITOR
COMPRESSOR
C
S
R
GRY
RED
BLK
208V
240V
24V
INDOOR
BLOWER
MOTOR
NOTE:
IF ANY OF THE ORIGINAL
WIRE IS REPLACED THE
SAME SIZE AND TYPE WIRE
MUST BE USED.
USE COPPER CONDUCTOR
ONLY, MIN 75 C WIRE
LINE VOLTAGE FIELD INSTALLED
WARNING-
ELECTRIC SHOCK HAZARD. UNIT
MUST BE GROUNDED IN ACCORDANCE
WITH NATIONAL AND LOCAL CODES.
YEL
Y
WHT
GRN
5 & 7.5KW HEATER ACCESSORIES
FUNCTION OFF W1 ONLY.
BLK
J2-1
J2-2
BLK
C
1
2
3
4
5
J2-6
J2-5
WHT
BLU
RED
YEL
WHT
B1
PUR
B4
BLACK
ORG
L
N
G
B3
S1
TRANSFORMER
TI
L
G
N
BLK
K1-1
CONTACTOR
YEL W/ STRIPE
CONTACTOR
K1-2
BLU
BLU
GRN
CONTACTOR
KI
YEL
BLK
J2-4
NOTE: TAP1 FOR FAN ONLY
TAP 2 FOR COOLING
TAP3 FOR HIGH STATIC COOLING
TAP4 AND TAP5 FOR ELECTRIC HEAT- REFER TO HEATING LABEL
BLK W/ STRIPE
YEL
YEL
YEL
HIGH PRESSURE
SWITCH
LOW PRESSURE
SWITCH (IF USED)
THERMAL PROTECTION
SWITCH (IF USED)
J1: PLUG THROUGH CONTROL PANEL (12 PIN)
J2: PLUG FOR ACCESSORY HEAT (6 PIN)
INDOOR BLOWER MOTOR
B-3
J1-3
J1-1
J1-2
J1-12
S4
S79
S173
J1-11
CONNECTION DIAGRAM
A/C (CONSTANT TORQUE BLOWER)
SINGLE PHASE
THERMOSTAT
W1 & W2 CAN BE USED TO STAGE
ELECTRIC HEAT ACCESSORY ON
10, 15 & 20KW MODELS
CRANK
CASE
HEATER
(IF USED)
BLK
BLK
HR1
FLOAT SWITCH
(IF USED)
FIGURE 16
LRP14AC Unit Wiring Diagram – Constant Torque Blower

Related product manuals