EasyManua.ls Logo

Lennox LRP16HP Series - LRP16 GE Wiring Diagram

Lennox LRP16HP Series
49 pages
To Next Page IconTo Next Page
To Next Page IconTo Next Page
To Previous Page IconTo Previous Page
To Previous Page IconTo Previous Page
Loading...
Page 38
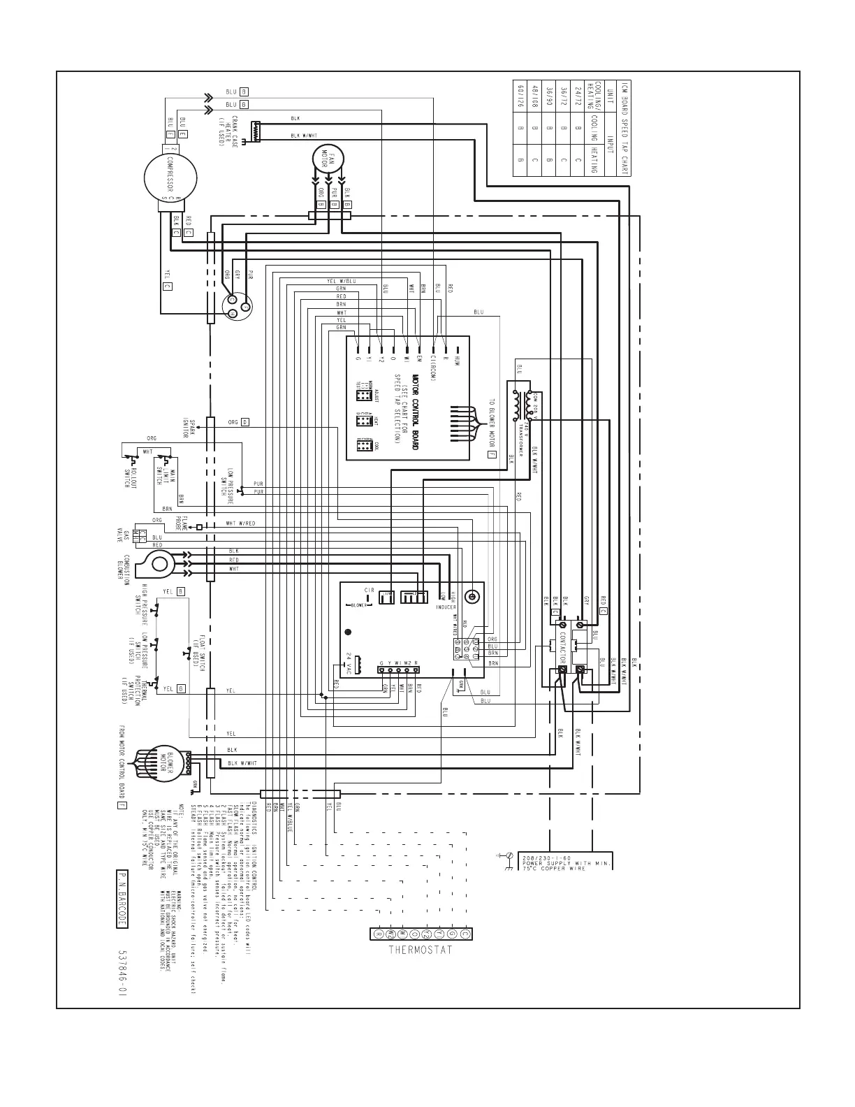
LRP16GE Wiring Diagram
FIGURE 18

Related product manuals