EasyManua.ls Logo

Lennox Merit ML296UH090XV48C

Lennox Merit ML296UH090XV48C
55 pages
To Next Page IconTo Next Page
To Next Page IconTo Next Page
To Previous Page IconTo Previous Page
To Previous Page IconTo Previous Page
Loading...
Page 34
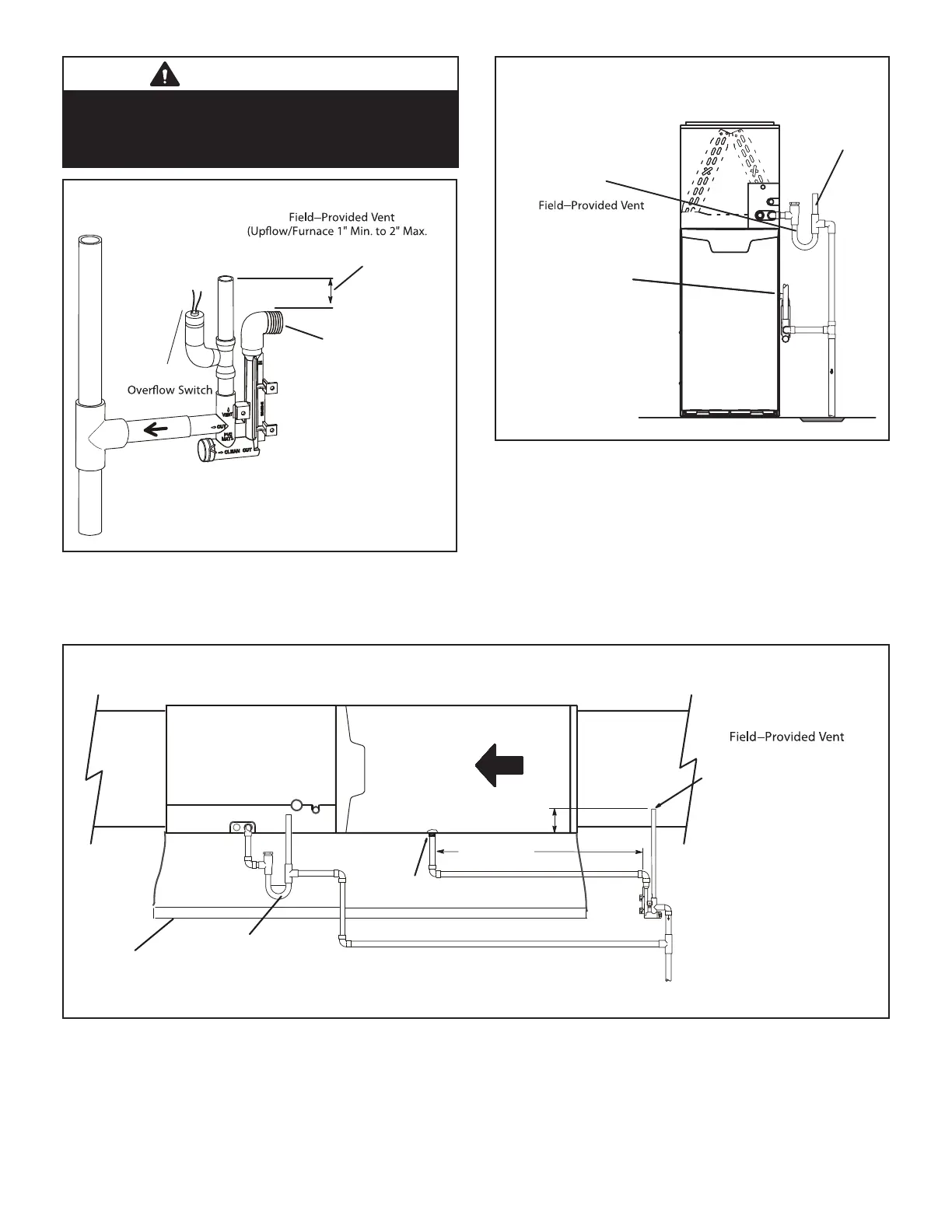
IMPORTANT
When combining the furnace and evaporator coil
drains together, the A/C condensate drain outlet must
be vented to relieve pressure in order for the furnace
pressure switch to operate properly.
HorizontalFurnace4 Min.to5 Max.above
condensatedrain connection)
FurnaceCondensate
Drain
Connection
From Evaporator Coil
Optional
Condensate Trap With Optional Overflow Switch
FIGURE 51
Furnace with Evaporator
Coil Using a Common Drain
(1” min.to2 Max.above
condensatedrain connection)
Condensate
Drain
Connection
Evaporator drain
line required
(Trap at coil is optional)
FIGURE 52
Furnace with Evaporator Coil Using a Common Drain
(Unit shown in horizontal left−hand discharge position)
Condensate Drain
Connection
(4” min.to5 Max.above
condensatedrain
connection)
5’ max.
PVC Pipe Only
4”min
5”max
Evaporator
Coil
Drain
Pan
Piping from furnace and evaporator coil must slope
down a minimum 1/4” per ft. toward trap
(Trap at coil is optional)
FIGURE 53

Related product manuals