EasyManua.ls Logo

Lennox Merit ML296UH090XV48C

Lennox Merit ML296UH090XV48C
55 pages
To Next Page IconTo Next Page
To Next Page IconTo Next Page
To Previous Page IconTo Previous Page
To Previous Page IconTo Previous Page
Loading...
Page 45
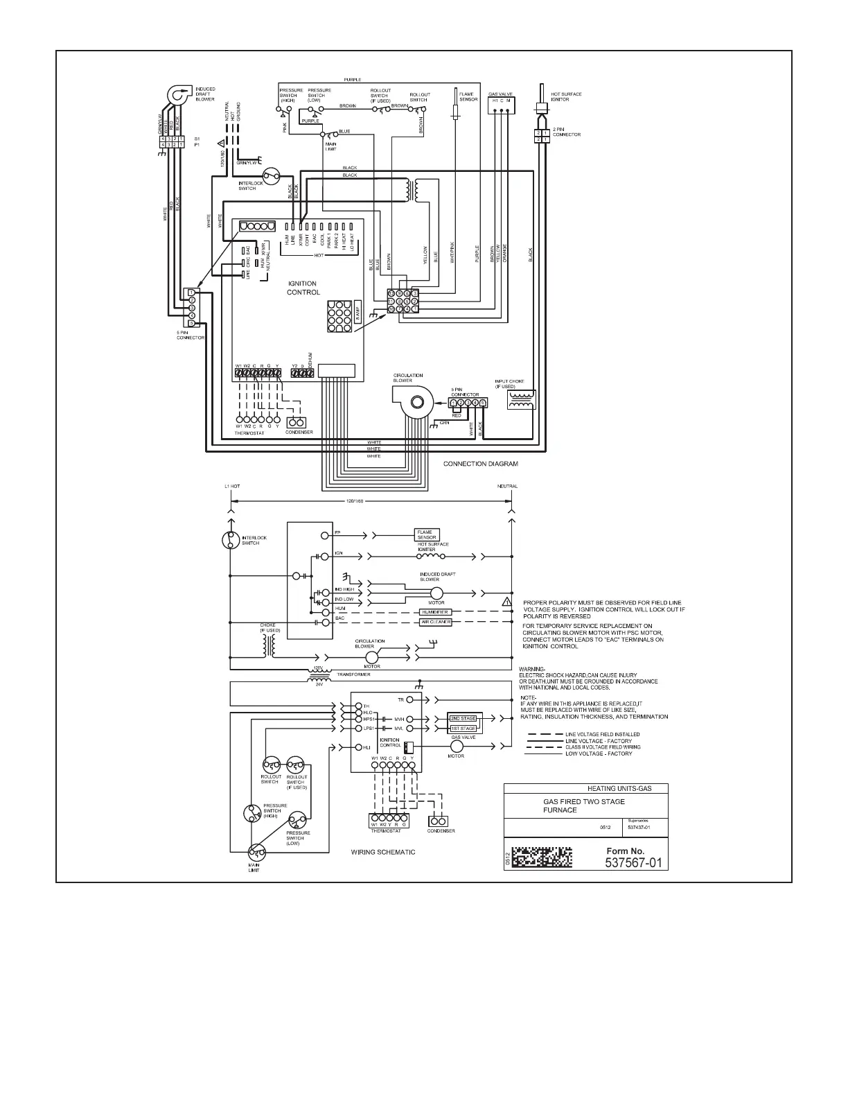
FIGURE 61
ML296UHV Schematic Wiring Diagram

Related product manuals