EasyManua.ls Logo

Lennox MWMA012S4-*P - Page 56

Lennox MWMA012S4-*P
168 pages
Print Icon
To Next Page IconTo Next Page
To Next Page IconTo Next Page
To Previous Page IconTo Previous Page
To Previous Page IconTo Previous Page
Loading...
56
1
2
3
OUT DOOR
FAN
RED
YELLOW
BLACK
Y/G
U
V
W
RY1
CN6
CN2
CN7
CN8
CN3
CN4
CN10
CN1
COMPRESSOR
Y/G
RED
BLUE
BLACK
O U T D O O R C OIL
TE M P.
OUTDOOR TEMP.SENSOR
WHITE
BLACK
COMPRESSOR
TEMP.SENSOR
6
OUTDOOR
MAIN
PCB
BLUE
BLACK
RED
CN13
CN12
L-OUT
CN18
4-WAY VALVE
CN414
BLUE
BLUE
U
V
W
Y/G
CN6-1
Y/G
RED
BLUE
3
CN14
CN15
CRANKCASE HEATER
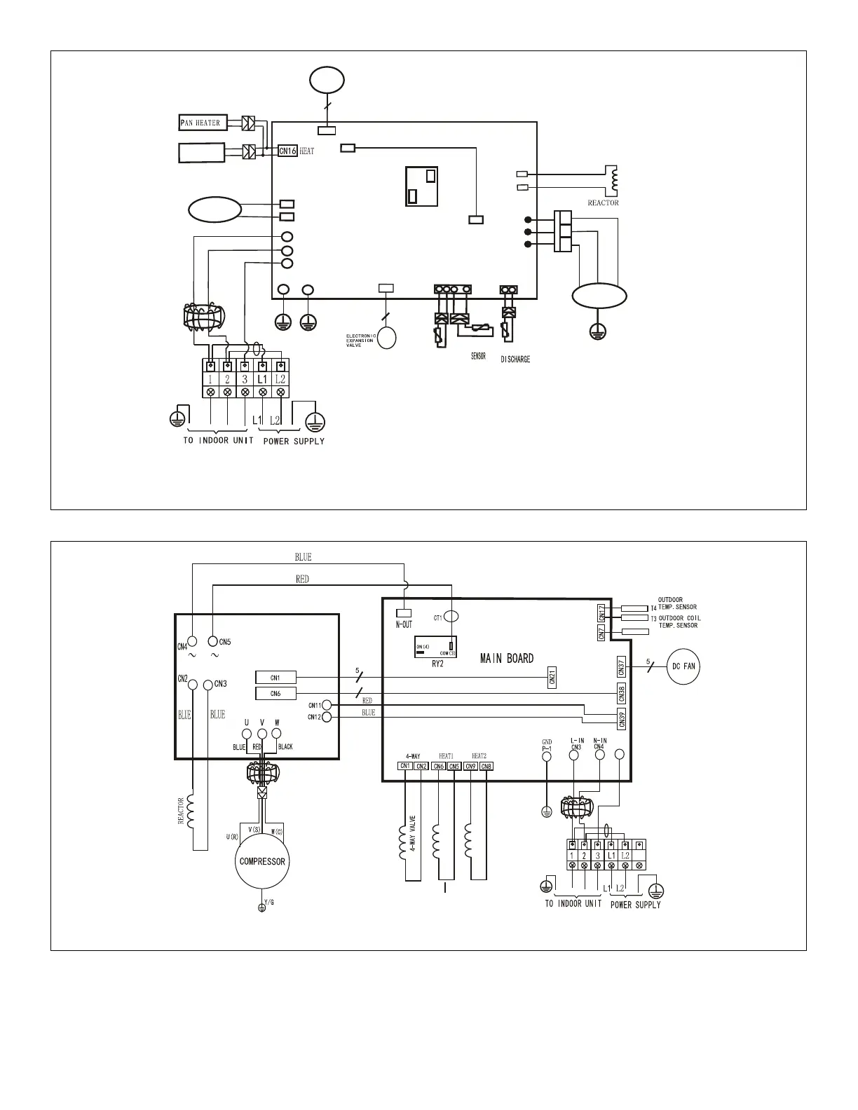
Typical wiring diagram. Refer to wiring diagram
on the unit for actual wiring.
Figure 8. 208/230V MPA018S4S-1P Outdoor Unit Wiring Diagram
COMPRESSOR DISCHARGE
TEMP.SENSOR
BLACK
RED
L-OUT
2
Y/G
RED
BLACK
CN10
S
YELLOW
Y/G
CRANK CASE HEATER
PAN HEATER
Compressor
Control Board
Typical wiring diagram. Refer to wiring diagram on the unit for actual wiring.
Figure 9. 208/230V MPA024S4S-1P Outdoor Unit Wiring Diagram

Table of Contents

Other manuals for Lennox MWMA012S4-*P

Related product manuals