EasyManua.ls Logo

Lenze 4900 - Page 298

Lenze 4900
342 pages
Print Icon
To Next Page IconTo Next Page
To Next Page IconTo Next Page
To Previous Page IconTo Previous Page
To Previous Page IconTo Previous Page
Loading...
Selection aid
15-6
48XX/49XXSHB0399
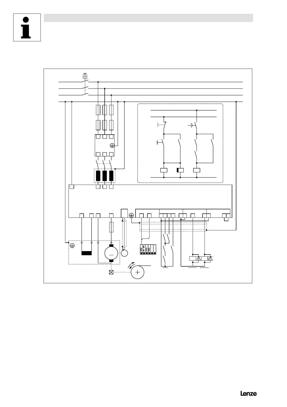
15.3 Torque control with speed limitation
4900Str101
Z1
K1
F '1 ...F '3
L
K
F ''1 ...F ''3
Q1
L1
L2
L3
PE
L1 L2 L3
L'1 L'2 L'3
L1 L2 L3PE
I K 20B
F'4
M
M1
21 28 39 40 59 90 FE82
X1 X2 X3 X4
4900
A
cw
R
22
ccw
K2
A4
K3
QSP
S1
S2
K2
K2 K2.1 K1
K2.1
K2K3
K1
td
td > tB r.
L11
L10
L20
X7
K4
A1
K4
n
M
IK AB
Ctrl.
enable
n
set
n a c t = 0
D irect connection to control cable "O N "
"Em ergency off" cable
n a c t < n x
U nw inder
M
set
PLC
Torque calculator
FIG 15-3 Connection diagram for torque control with speed limitation
Show/Hide Bookmarks

Table of Contents

Related product manuals