EasyManua.ls Logo

Lenze MP 2000 DVI - Abmessungen

Lenze MP 2000 DVI
88 pages
Go to English
To Next Page IconTo Next Page
To Next Page IconTo Next Page
To Previous Page IconTo Previous Page
To Previous Page IconTo Previous Page
Loading...
Installation
Abmessungen
4
13
MA_ELx0xx DE/EN/FR/ES/IT 2.0
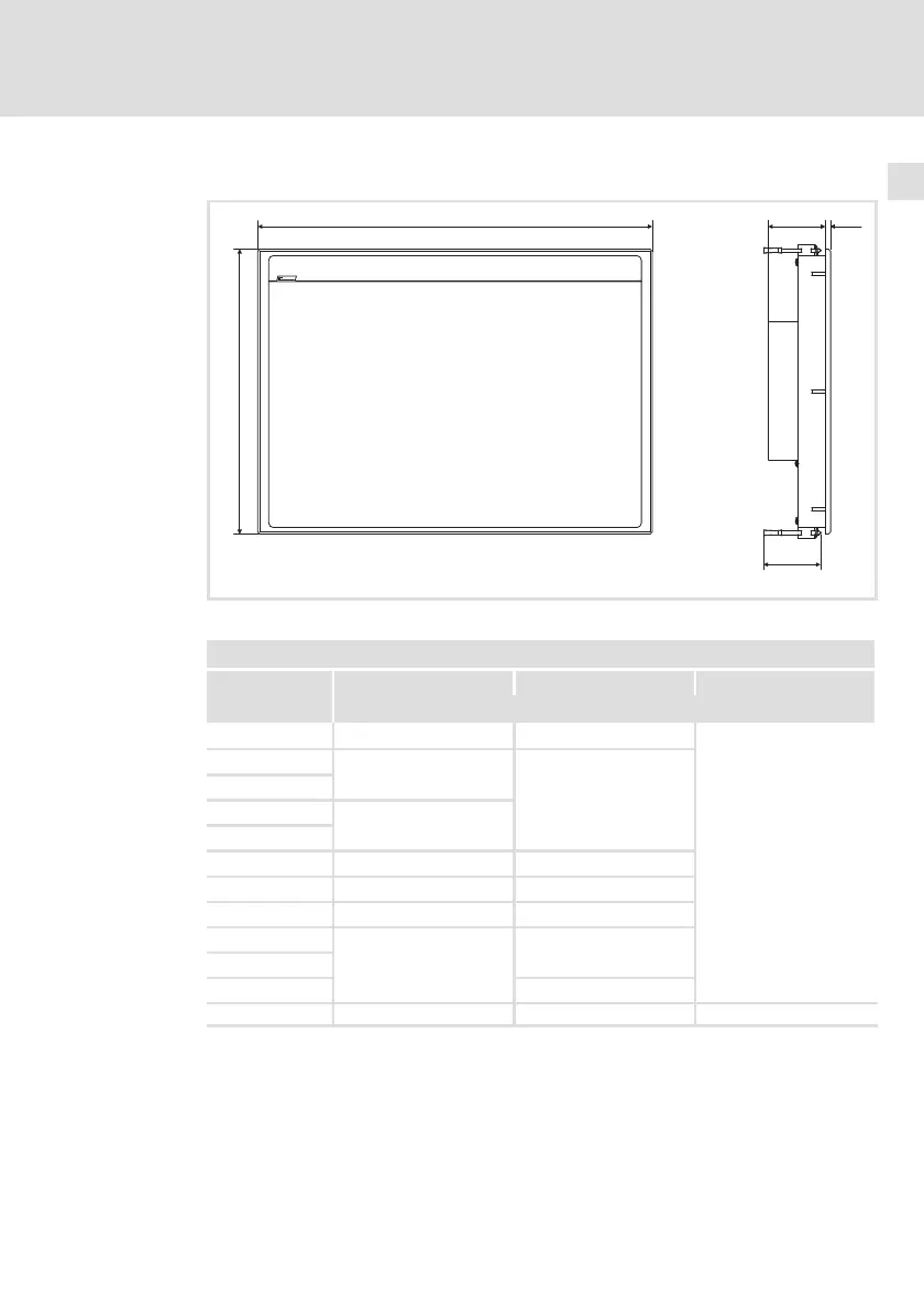
4.2 Abmessungen
a
b
6e
65
MP9000DVI−003
Alle Maße in Millimeter.
Abmessungen
a b e
[mm]
MP 800 DVI
265 200
59
MP 1000 DVI
325
240
MP 1000s DVI
MP 1050 DVI
365
MP 1050s DVI
MP 2000 DVI
390 300
MP 2050 DVI
425 310
MP 5000 DVI
450 325
MP 5020 DVI
483
310 (7 HE)
MP 5050 DVI
MP 5070 DVI
399 (9 HE)
MP 9000 DVI 490 400 69

Table of Contents

Other manuals for Lenze MP 2000 DVI

Related product manuals