EasyManua.ls Logo

Lenze MP 2000 DVI - Apertura DI Montaggio

Lenze MP 2000 DVI
88 pages
Go to English
To Next Page IconTo Next Page
To Next Page IconTo Next Page
To Previous Page IconTo Previous Page
To Previous Page IconTo Previous Page
Loading...
Installazione
Apertura di montaggio
4
65
MA_ELx0xx DE/EN/FR/ES/IT 2.0
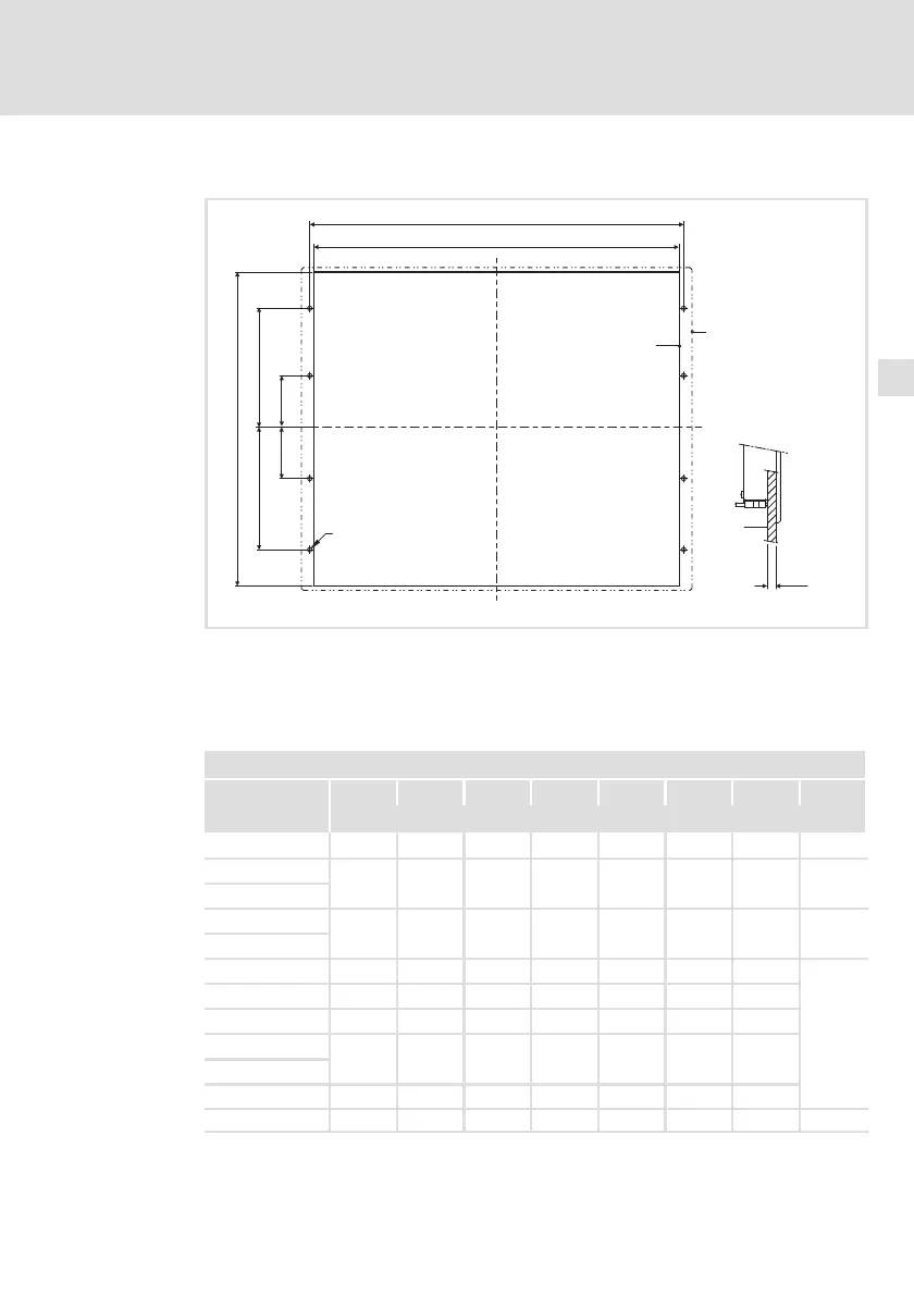
4.3 Apertura di montaggio
0
1
a1
a2
£ 5
2
b1
b2
b3
b5
b4
D
ELx7xx−004
Apertura di montaggio
Profilo del telaio frontale
Quadro elettrico
Tutte le quote sono in millimetri.
Dimensioni
a1 a2 b1 b2 b3 b4 b5 D
[mm]
MP 800 DVI 246 188
MP 1000 DVI
305.0 228.0
MP 1000s DVI
MP 1050 DVI
343.0 228.0
MP 1050s DVI
MP 2000 DVI
340.0 351.0 288.0 122.0 122.0 0.0
6 x Æ5.5
MP 2050 DVI
375.0 386.0 288.0 122.0 122.0 0.0
MP 5000 DVI
400.0 411.0 313.0 134.5 134.5 0.0
MP 5020 DVI
452.0 462.4 299.0 104.9 104.6 15.7
MP 5050 DVI
MP 5070 DVI
452.0 462.4 388.2 149.3 149.3 15.9
MP 9000 DVI 438.0 451.0 386.0 172.0 172.0 60.0 60.0 8 x Æ4.5

Table of Contents

Other manuals for Lenze MP 2000 DVI

Related product manuals