EasyManua.ls Logo

Lenze MP 2000 DVI - Electrical Installation

Lenze MP 2000 DVI
88 pages
Go to English
To Next Page IconTo Next Page
To Next Page IconTo Next Page
To Previous Page IconTo Previous Page
To Previous Page IconTo Previous Page
Loading...
Installation
Electrical installation
4
35
MA_ELx0xx DE/EN/FR/ES/IT 2.0
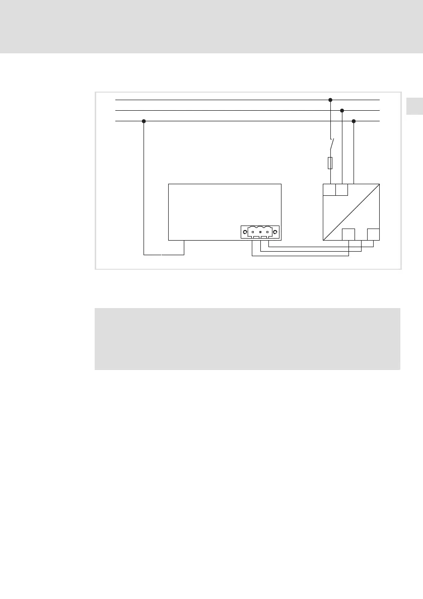
4.5 Electrical installation
L1
N
PE
L1
N
+
0V
+24
+
~=
0V
PE +24 V
+
0
1
F
S
MP9000DVI−006
Monitor panel
Power supply unit
Note!
Observe the max. permissible input voltage.
Professionally fuse the device on the input side against voltage
variations and voltage peaks.

Table of Contents

Other manuals for Lenze MP 2000 DVI

Related product manuals