EasyManua.ls Logo

Lester SUMMIT 27790 - Battery Type

Lester SUMMIT 27790
20 pages
Print Icon
To Next Page IconTo Next Page
To Next Page IconTo Next Page
To Previous Page IconTo Previous Page
To Previous Page IconTo Previous Page
Loading...
Summit Series ® 8 of 20 User’s Manual
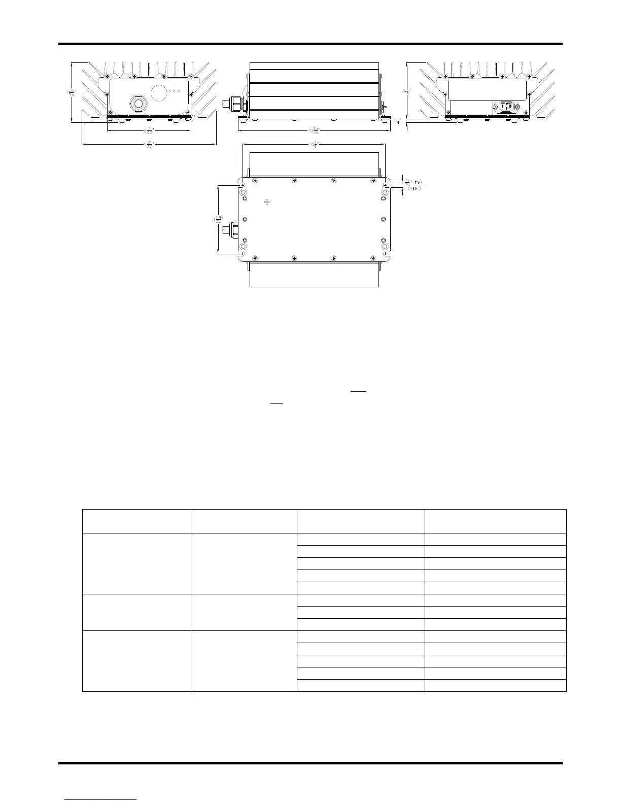
Figure 2-3: Charger Dimensions and Mounting Slot Locations (Case #2)
3. BATTERY TYPE
This charger was factory-configured to charge the type of battery indicated in the BATTERY field on the
charger ratings label (for example, “Wet”). The 13
th
and 14
th
characters in the charger part number, available
in the PART NO field on the charger ratings label, provide the battery profile code for the primary battery
profile. For example, charger part number 27790G05K5B1W1 has a primary battery profile code of “W1”
and charger part number 27790G05K5B1A1 has a primary battery profile code of “A1”. Figure 3-1 lists
standard battery profile codes and their corresponding battery profiles. If the battery profile code for your
charger is not listed in Figure 3-1, please contact your dealer for information. To change the active battery
profile for this charger, please contact your dealer. If the active battery profile is changed, mark the charger
ratings label or add an additional label or tag.
CAUTION: THIS CHARGER IS FOR USE ONLY WITH BATTERY SYSTEMS OF THE SAME TYPE AS
THE ACTIVE BATTERY PROFILE. BATTERIES IMPROPERLY MATCHED WITH THE CHARGER MAY
BURST CAUSING PERSONAL INJURY AND DAMAGE TO THE BATTERIES OR CHARGER.
Model
Rating
Part Number Battery
Profile Code
Battery Profile
27790/27800
48V/13A
W1
Wet, standard, 4.5A finish
W2
Wet, temp comp, 4.5A finish
W4
Wet, standard, 6A finish
A1
AGM, standard
G1
Gel, standard
28110/28120
36V/14.5A
W1
Wet, standard, 6A finish
A1
AGM, standard
G1
Gel, standard
27940/27950
24V/25A
W1
Wet, standard, 7A finish
W4
Wet, standard, 9A finish
W6
Wet, standard, 11A finish
A1
AGM, standard
G1
Gel, standard
Figure 3-1: Standard Battery Profile Codes and Their Corresponding Battery Profiles

Related product manuals