EasyManua.ls Logo

LEXIUM MHDA1056 - Drive and Mounting Area Dimensions

Default Icon
204 pages
Print Icon
To Next Page IconTo Next Page
To Next Page IconTo Next Page
To Previous Page IconTo Previous Page
To Previous Page IconTo Previous Page
Loading...
38
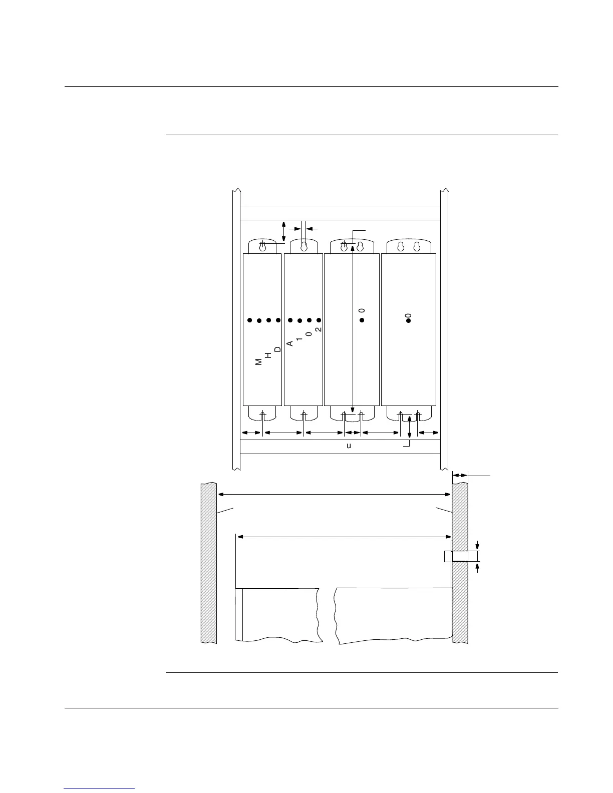
Drive Mounting and Physical Dimensions, continued
17D Drive and
Mounting Area
Dimensions
The following diagram shows depth dimensions and mounting area requirements
for the 17D drive.
MHDA1056
/
00
Cable duct
45 mm 5 mm 305 mm
45 mm
40 mm70 mm70 mm70 mm40 mm
50 mm
273 mm
Lexium 17D
265 (273 mm*) mm
Cabinet door
Mounting panel
* Dimensions with mating connectors installed
2,5 mm
(min.)
M5
MHDA1056
/
00
MHDA1004
/
00
MKDA1008
/
00
MHDA1017
/
00
MHDA1028
/
00
MHDA1004
/
00
MKDA1008
/
00
MHDA1017
/
00
MHDA1028
/
00
Cable duct

Table of Contents

Related product manuals