EasyManua.ls Logo

LG 22LT360C - Page 33

LG 22LT360C
39 pages
Print Icon
To Next Page IconTo Next Page
To Next Page IconTo Next Page
To Previous Page IconTo Previous Page
To Previous Page IconTo Previous Page
Loading...
THE SYMBOL MARK OF THIS SCHEMETIC DIAGRAM INCORPORATES
SPECIAL FEATURES IMPORTANT FOR PROTECTION FROM X-RADIATION.
FILRE AND ELECTRICAL SHOCK HAZARDS, WHEN SERVICING IF IS
ESSENTIAL THAT ONLY MANUFATURES SPECFIED PARTS BE USED FOR
THE CRITICAL COMPONENTS IN THE SYMBOL MARK OF THE SCHEMETIC.
PM_RXD
PM_TXD
0.1uF
C1105
22UH
PSU_POWER_OUT
L50
CB3216PA501E
POWER_OUT
L54
0.33uFC1101
JP1122
22uF
16V
POWER_OUT
C63
+12V
1/16W
10K
1%
PSU_POWER_OUT
R57
150pF
50V
PSU_POWER_OUT
C50
22uF
16V
POWER_OUT
C64
0.1uF
C1104
JP1121
MP5000DQ
POWER_OUT
IC52
3
ENABLE/FAULT
2
DV/DT
4
I-LIMIT
1
GND
5
NC
6
SOURCE_1
7
SOURCE_2
8
SOURCE_3
9
SOURCE_4
10
SOURCE_5
11
VCC
22uF
25V
PSU_POWER_OUT
C52
0.1uF
C1106
0.1uF
50V
POWER_OUT
C65
IR_OUT
100K
PSU_POWER_OUT
R52
CDS3C30GTH
30V
D1108
OPT
THERMAL
MP4460DQ-LF-Z
PSU_POWER_OUT
IC50
3
EN
2
SW_2
4
COMP
1
SW_1
5
FB
6
GND
7
FREQ
8
VIN_1
9
VIN_2
10
BST
11
EP_GND
1/16W
20K
1%
PSU_POWER_OUT
R55
EXT_12V
0.1uF
50V
PSU_POWER_OUT
C53
43
POWER_OUT
R65
1/16W
270K
1%
PSU_POWER_OUT
R56
1K
POWER_OUT
R63
0.1uF
C1102
18K
PSU_POWER_OUT
R50
0.1uF
50V
PSU_POWER_OUT
C51
+24V
+3.5V_ST
EAN41348201
MAX3232CDR
IC1101
3
C1-
2
V+
4
C2+
1
C1+
6
V-
5
C2-
7
DOUT2
8
RIN2
9
ROUT2
10
DIN2
11
DIN1
12
ROUT1
13
RIN1
14
DOUT1
15
GND
16
VCC
22
PSU_POWER_OUT
R54
0.1uF
50V
PSU_POWER_OUT
C55
470pF
50V
POWER_OUT
C61
0.1uF
C1103
3.3uF
50V
PSU_POWER_OUT
C54
CDS3C30GTH
30V
D1107
OPT
1uF
16V
POWER_OUT
C62
100
R1124
EXT12V_CTRL
EXT_12V
MBRA340T3G
PSU_POWER_OUT
D50
+12V
SPG09-DB-009
JK1101
1
2
3
4
5
6
7
8
9
10
100
R1123
CB3216PA501E
LIPS_POWER_OUT
L51
+12V/+15V
1K
R1100
BAP70-02
50V
D1100
+3.5V_ST
150K
PSU_POWER_OUT
R51
1/8W
200K
1%
PSU_POWER_OUT
R53
100K
POWER_OUT
R66
1/16W
1.2K
POWER_OUT
R67
EXT_PWR_DET
POWER_OUT
D51
A1
C
A2
100
POWER_OUT
R64
0.1uF
16V
OPT
C56
1/16W
2.4K
5%
POWER_OUT
R68
NCP803SN293
IC51-*1
POWER_OUT_ON_SEMI
1
GND
3
VCC
2
RESET
APX803D29
POWER_OUT_DIODES
IC51
1
GND
3
VCC
2
RESET
20110324GP3_S7LR
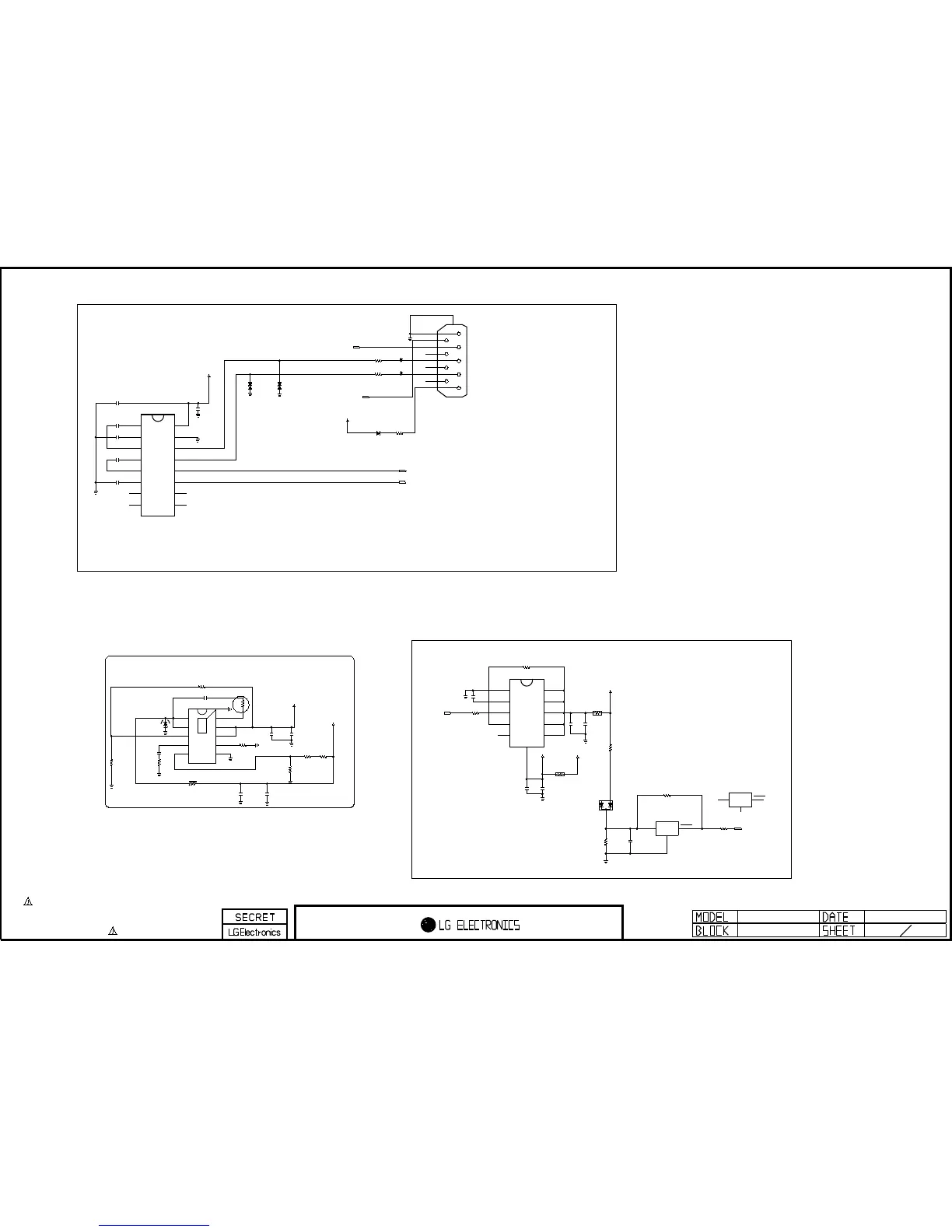
RS232C_9PIN 10
close to pin
(For External power)
DC DC CONVERTER +12V_ONLY PSU
12V EXT PowerOut
RS232C
Switching noise reducing [MPS recommend]
$0.21
Copyright © 2012 LG Electronics. Inc. All rights reserved.
Only for training and service purposes
LGE Internal Use Only

Related product manuals