EasyManua.ls Logo

LG ARNU763B8A4 - Page 31

LG ARNU763B8A4
203 pages
Print Icon
To Next Page IconTo Next Page
To Next Page IconTo Next Page
To Previous Page IconTo Previous Page
To Previous Page IconTo Previous Page
Loading...
HIGH STATIC | 31
Ducted High Static
Due to our policy of continuous product innovation, some specications may change without notication.
© LG Electronics U.S.A., Inc., Englewood Cliffs, NJ. All rights reserved. “LG” is a registered trademark of LG Corp.
DUCTED HIGH STATIC
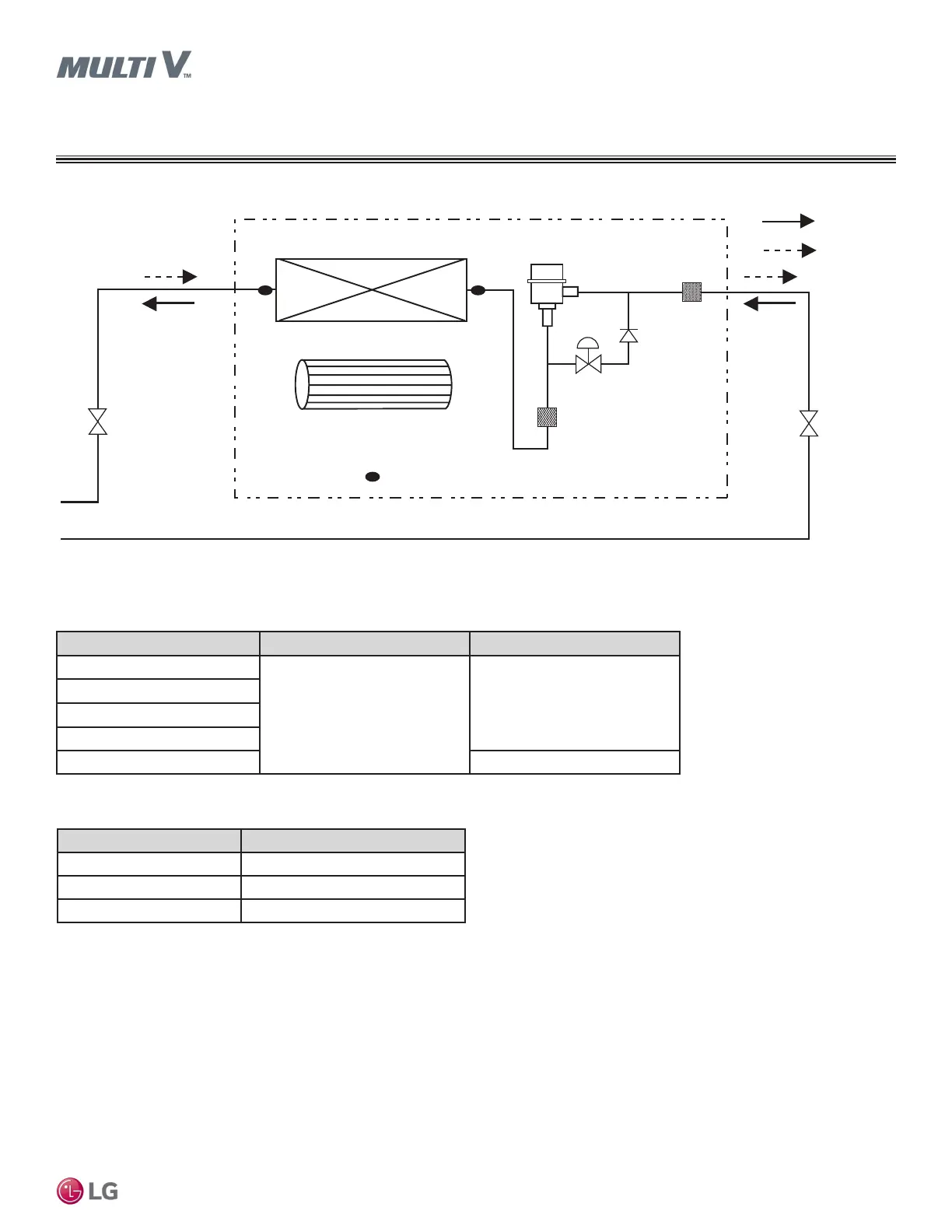
Refrigerant Flow Diagram
B8 Units
Figure 12: B8 Unit Refrigerant Flow Diagram.
Table 17: B8 Unit Refrigerant Pipe Connection Port Diameters.
Table 18: B8 Unit Thermistors.
Heat Exchanger
Sirocco Fan
TH3
TH1
TH2
lndoor unit
EEV
Heating
Cooling
Filter
Check
Valve
Solenoid Valve
Filter
Model Liquid (inch) Vapor (inch)
ARNU363B8A4
3/8 Flare
3/4 Brazed
ARNU423B8A4
ARNU483B8A4
ARNU763B8A4
ARNU963B8A4
7/8 Brazed
Thermistor Description
TH1 Return air thermistor
TH2 Pipe in thermistor
TH3 Pipe out thermistor

Other manuals for LG ARNU763B8A4

Related product manuals