EasyManua.ls Logo

LG AS-C096QLA0 - Refrigerant Cycle Diagram; Cooling Only Model Cycle; Cooling and Heating Model Cycle

LG AS-C096QLA0
89 pages
To Next Page IconTo Next Page
To Next Page IconTo Next Page
To Previous Page IconTo Previous Page
To Previous Page IconTo Previous Page
Loading...
2005 Product Data 59
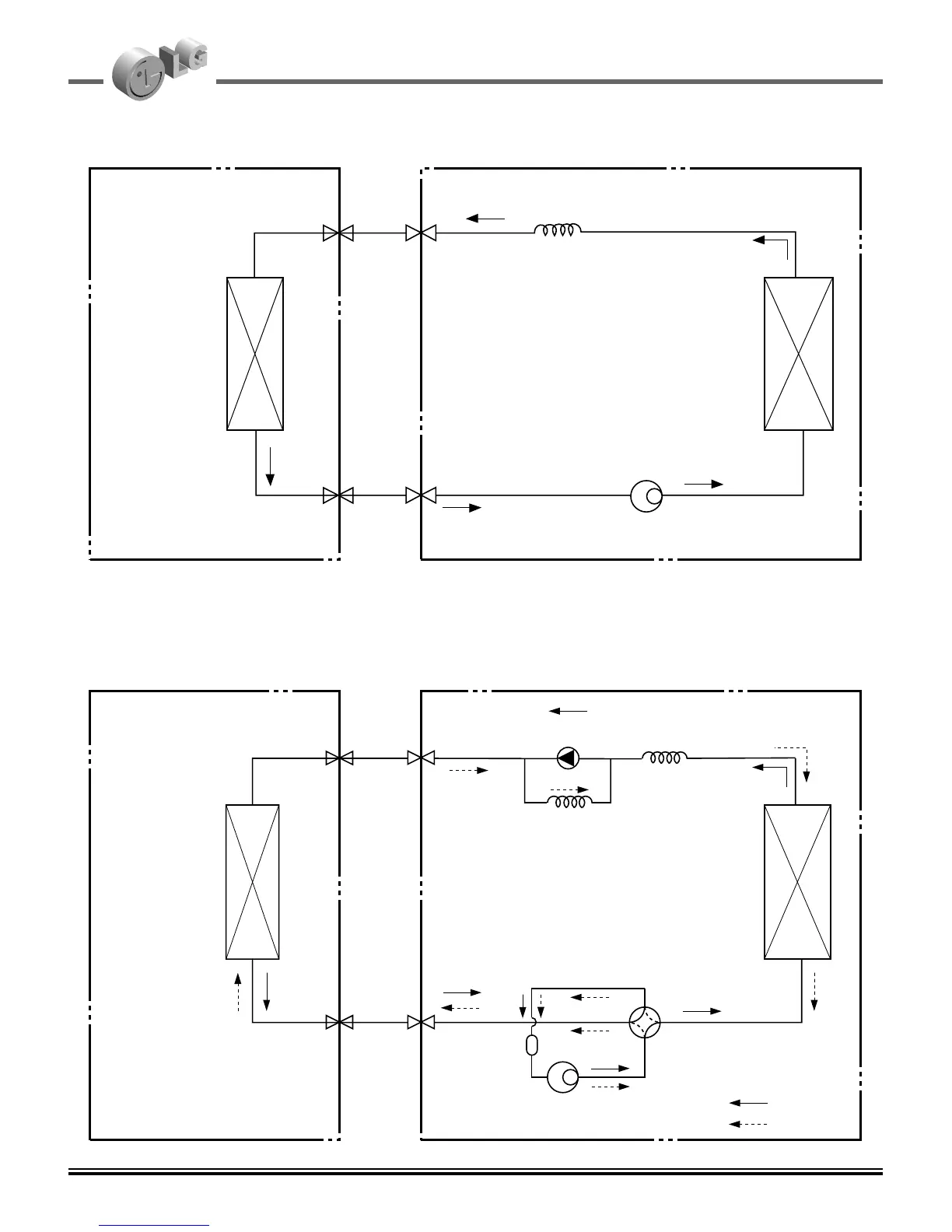
7. Refrigerant Cycle Diagram
Model: Cooling and Heating
Model: Cooling Only
INDOOR UNIT OUTDOOR UNIT
INDOOR UNIT OUTDOOR UNIT
HEAT
EXCHANGE
(EVAPORATOR)
HEAT
EXCHANGE
(EVAPORATOR)
HEAT
EXCHANGE
(CONDENSER)
HEAT
EXCHANGE
(CONDENSER)
COMPRESSOR
COMPRESSOR
ACCUMU
LATOR
GAS SIDE
GAS SIDE
3-WAY VALVE
LIQUID SIDE
LIQUID SIDE
3-WAY VALVE
CAPILLARY TUBE
CAPILLARY TUBE
CHECK VALVE
(Heating Model only)
COOLING
HEATING
REVERSING
VALVE
(Heating Model Only)

Other manuals for LG AS-C096QLA0

Related product manuals