EasyManua.ls Logo

LG AS-C186TLB0 - LG Air Conditioner Refrigerant Cycle Diagram; Cooling Only Refrigerant Cycle; Cooling and Heating Refrigerant Cycle

LG AS-C186TLB0
89 pages
To Next Page IconTo Next Page
To Next Page IconTo Next Page
To Previous Page IconTo Previous Page
To Previous Page IconTo Previous Page
Loading...
2005 Product Data 59
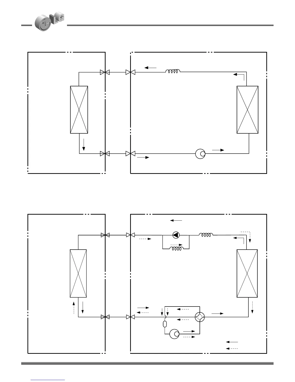
7. Refrigerant Cycle Diagram
Model: Cooling and Heating
Model: Cooling Only
INDOOR UNIT OUTDOOR UNIT
INDOOR UNIT OUTDOOR UNIT
HEAT
EXCHANGE
(EVAPORATOR)
HEAT
EXCHANGE
(EVAPORATOR)
HEAT
EXCHANGE
(CONDENSER)
HEAT
EXCHANGE
(CONDENSER)
COMPRESSOR
COMPRESSOR
ACCUMU
LATOR
GAS SIDE
GAS SIDE
3-WAY VALVE
LIQUID SIDE
LIQUID SIDE
3-WAY VALVE
CAPILLARY TUBE
CAPILLARY TUBE
CHECK VALVE
(Heating Model only)
COOLING
HEATING
REVERSING
VALVE
(Heating Model Only)

Other manuals for LG AS-C186TLB0

Related product manuals