EasyManua.ls Logo

LG DV286-E3M - Comment Installer Le Lecteur; Installation Et Configuration; Raccordements Audio Et VIDéo À Votre TV; Raccordements du Lecteur DVD

LG DV286-E3M
89 pages
Print Icon
To Next Page IconTo Next Page
To Next Page IconTo Next Page
To Previous Page IconTo Previous Page
To Previous Page IconTo Previous Page
Loading...
8
Comment installer le lecteur
L´image et le son de tout TV, VCR ou radio peuvent
être modifiés lors de la lecture. Le cas échéant, placez
le lecteur loin du TV, VCR ou radio ou éteignez
l´appareil après avoir retiré le disque du boîtier.
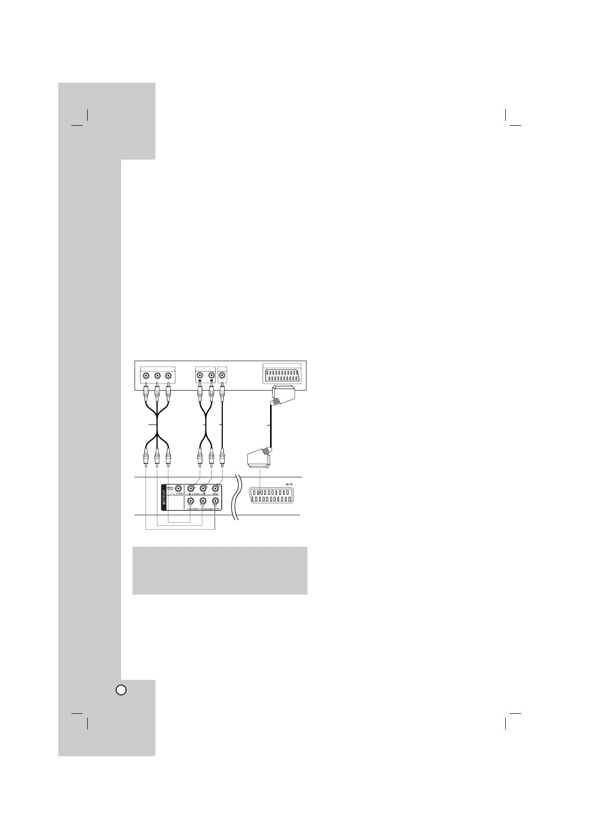
Raccordements du lecteur DVD
Il existe plusieurs manières de raccorder votre lecteur
selon le TV et les autres composants dont vous
disposez. Veuillez se reporter aux modes d´emploi de
votre TV, système audio et tout autre appareil si
nécessaire afin d´obtenir des renseignements
supplémentaires à propos du raccordement.
Raccordements audio et vidéo à
votre TV
Vérifier que le lecteur DVD soit raccordé directement
au téléviseur et non au VCR, dans ce cas l´image du
DVD risque d´être modifiée par le système de
protection contre copie.
Connexion à la prise SCART – Raccorder le TO
TV SCART du lecteur DVD au SCART
correspondant du téléviseur TV à l´aide du câble
SCART (T).
Vidéo Raccorder la borne VIDEO OUT du
lecteur DVD à la borne d´entrée de vidéo (vidéo
in) du téléviseur à l´aide du câble de vidéo (V).
Audio Raccorder les AUDIO OUT gauche (L) et
droit (R) du lecteur DVD aux bornes d´entrée
audio gauche et droite (AUDIO IN / INPUT) du
téléviseur à l´aide des câbles audio (A). Ne pas
raccorder le AUDIO OUT du lecteur DVD à la
borne de Phone in (unité d´enregistrement) de
votre système audio.
Component Video Raccordez les prises
COMPONENT/ PROGRESSIVE SCAN de
l'appareil aux prises d'entrée correspondantes du
téléviseur à l'aide d'un câble Y P
B PR (C).
Progressive Scan
Si votre téléviseur est de type « haute
définition » ou « prêt à numérique », vous
pouvez profiter de la sortie balayage
progressif de ce lecteur DVD pour obtenir la
meilleure netteté d'image vidéo possible.
Réglez le Progressive Scan sur la position
“Marche” dans le menu réglage (setup menu)
pour obtenir un signal progressive scan.
(voir page 11.)
Le Progressive Scan ne marche pas avec les
connexions vidéo analogiques (prise jaune
VIDEO OUT).
R
L
AUDIO INPUT
VIDEO
INPUT
Y
Pb
Pr
COMPONENT VIDEO /
PROGRESSIVE SCAN INPUT
Rear of DVD player
A VC
SCART INPUT
T
Installation et Configuration
Face arrière du téléviseur
Attention:
Vous devez voir l’option Sortie TV dans le menu de
réglage pour pouvoir utiliser la prise
COMPONENT/PROGRESSIVE SCAN ou le signal
RVB de la prise PERITEL. (voir page 11.)
Arrière du lecteur
DVD

Table of Contents

Related product manuals