EasyManua.ls Logo

LG LAN180HSV - Refrigerant Cycle Diagram

LG LAN180HSV
83 pages
Print Icon
To Next Page IconTo Next Page
To Next Page IconTo Next Page
To Previous Page IconTo Previous Page
To Previous Page IconTo Previous Page
Loading...
6RMI0-02A
32
Inverter Single
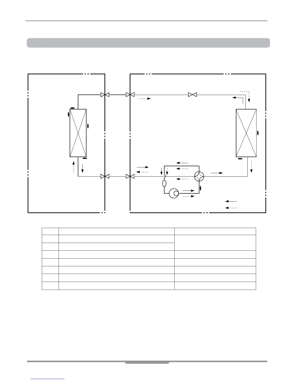
Refrigerant cycle diagram
Inverter Single
Inverter Single
6. Refrigerant cycle diagram
Models :
AS-W093B1U1(LS091HSV), AS-W123B1U1(LS121HSV)
Indoor Unit Outdoor Unit
Heat
Exchanger
(Evaporator)
Heat
Exchanger
(Condenser)
Compressor
Accumulator
Gas Side
3-Way Valve
2-Way Valve
Liquid Side
Cooling
Heating
Reversing Valve
EEV
Th1
Th2
Th6
Th3
Th7
Th4
Th5
LOC. Description PCB Connector
Th1 Thermistor for sunction air temperature
CN-TH1(Indoor)
Th2 Thermistor for evaporator inlet temperature
Th3 Thermistor for evaporator outlet temperature CN-TH2(Indoor)
Th4 Thermistor for evaporator middle temperature CN-TH3(Indoor)
Th5 Thermistor for discharge pipe temperature CN-TH2(OUTDOOR)
Th6 Thermistor for condensing temperature CN-TH1(OUTDOOR)
Th7 Thermistor for outdoor air temperature CN-TH1(OUTDOOR)
EEV : Electronic Expansion Valve

Other manuals for LG LAN180HSV

Related product manuals