EasyManua.ls Logo

LG LAN180HSV - Page 35

LG LAN180HSV
83 pages
Print Icon
To Next Page IconTo Next Page
To Next Page IconTo Next Page
To Previous Page IconTo Previous Page
To Previous Page IconTo Previous Page
Loading...
6RMI0-02A
34
Inverter Single
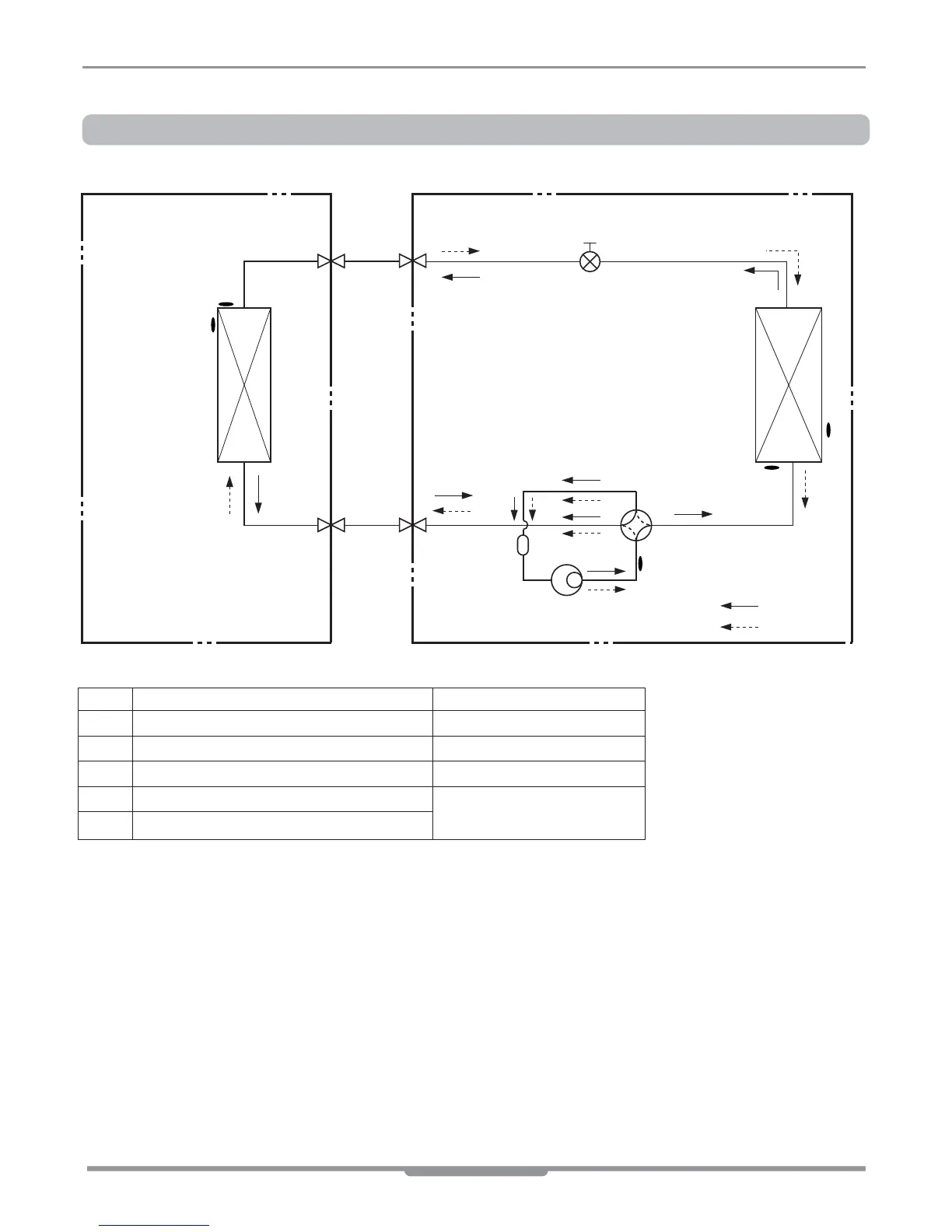
Refrigerant cycle diagram
Inverter Single
Inverter Single
Models : AS-W093ERH1(LA096HV),AS-W123ERH1(LA126HV)
Indoor Unit Outdoor Unit
Heat
Exchanger
(Evaporator)
Heat
Exchanger
(Condenser)
EEV
Compressor
Accumulator
Gas Side
3-Way Valve
2-Way Valve
Liquid Side
Cooling
Heating
Reversing Valve
Th1
Th2
Th5
Th4
Th3
LOC. Description PCB Connector
Th1 Thermistor for indoor air temperature CN_TH1(INDOOR)
Th2 Thermistor for evaporating temperature CN_TH2(INDOOR)
Th3 Thermistor for discharge pipe temperature CN_D_PIPE(OUTDOOR)
Th4 Thermistor for condensing temperature
CN_TH1(OUTDOOR)
Th5 Thermistor for outdoor air temperature
* EEV : Electronic Expansion Valve.

Other manuals for LG LAN180HSV

Related product manuals