EasyManua.ls Logo

LG LAN180HSV - Page 36

LG LAN180HSV
83 pages
Print Icon
To Next Page IconTo Next Page
To Next Page IconTo Next Page
To Previous Page IconTo Previous Page
To Previous Page IconTo Previous Page
Loading...
6RMI0-02A
35
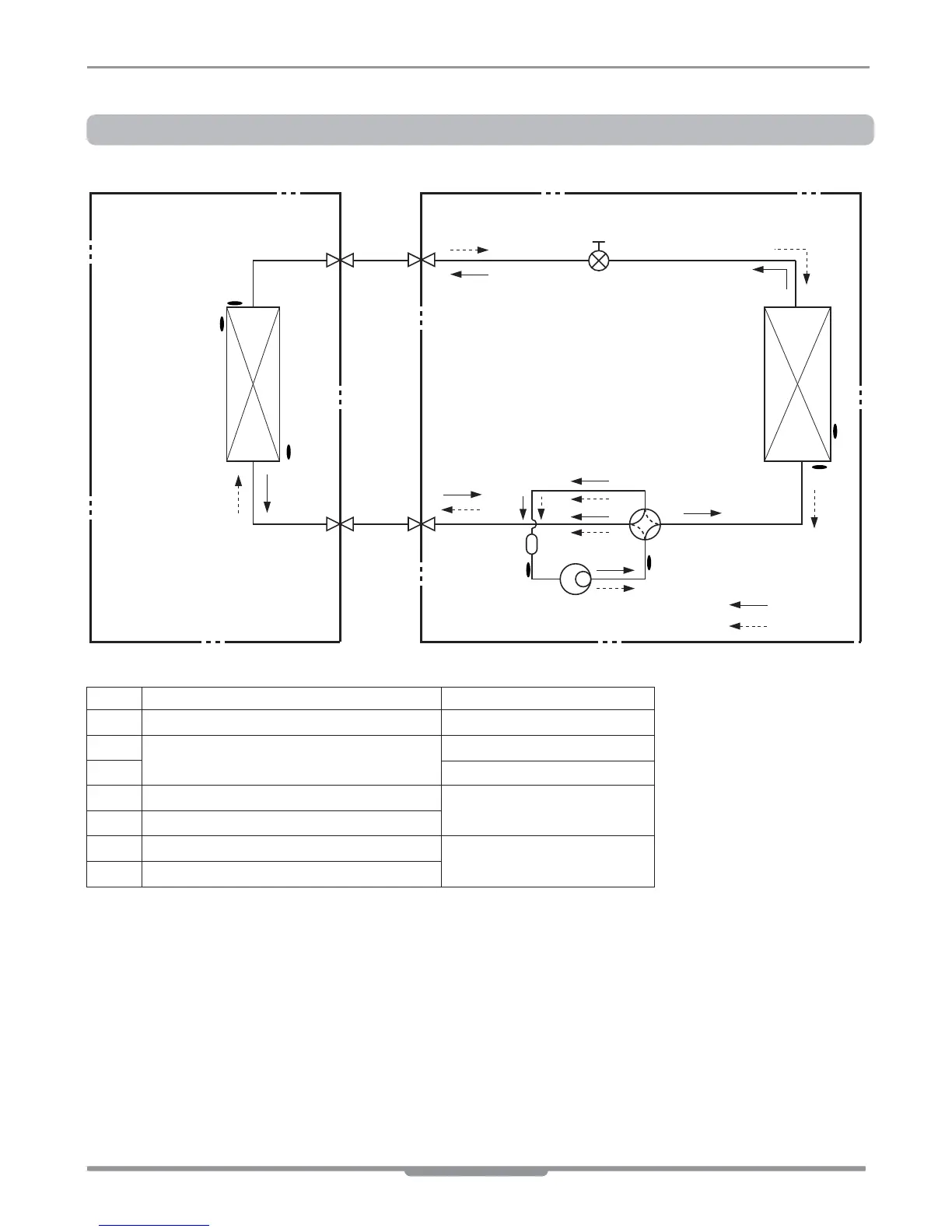
Inverter Single
Refrigerant cycle diagram
Inverter Single
Modes : AS-W1838RH1(LA186HV), AS-W2438RH1(LA246HV), AS-W2435SZ1(LS246HV)
Indoor Unit Outdoor Unit
Heat
Exchanger
(Evaporator)
Heat
Exchanger
(Condenser)
EEV
Compressor
Accumulator
Gas Side
3-Way Valve
2-Way Valve
Liquid Side
Cooling
Heating
Reversing Valve
Th1
Th2
Th3
Th5
Th4
Th6
Th7
LOC. Description PCB Connector
Th1 Thermistor for indoor air temperature CN_TH1(INDOOR)
Th2
Thermistor for evaporating temperature
CN_TH2(INDOOR)
Th3 CN_TH3(INDOOR)
Th4 Thermistor for outdoor air temperature
CN_TH2(OUTDOOR)
Th5 Thermistor for condensing temperature
Th6 Thermistor for discharge pipe temperature
CN_TH3(OUTDOOR)
Th7 Thermistor for suction pipe temperature
Inverter Single

Other manuals for LG LAN180HSV

Related product manuals