EasyManua.ls Logo

LG LB-F3660HL - Indoor Unit; Outdoor Unit

LG LB-F3660HL
41 pages
To Next Page IconTo Next Page
To Next Page IconTo Next Page
To Previous Page IconTo Previous Page
To Previous Page IconTo Previous Page
Loading...
- 8 -
Copyright ©2008 LG Electronics. Inc. All right reserved.
Only for training and service purposes
LGE Internal Use Only
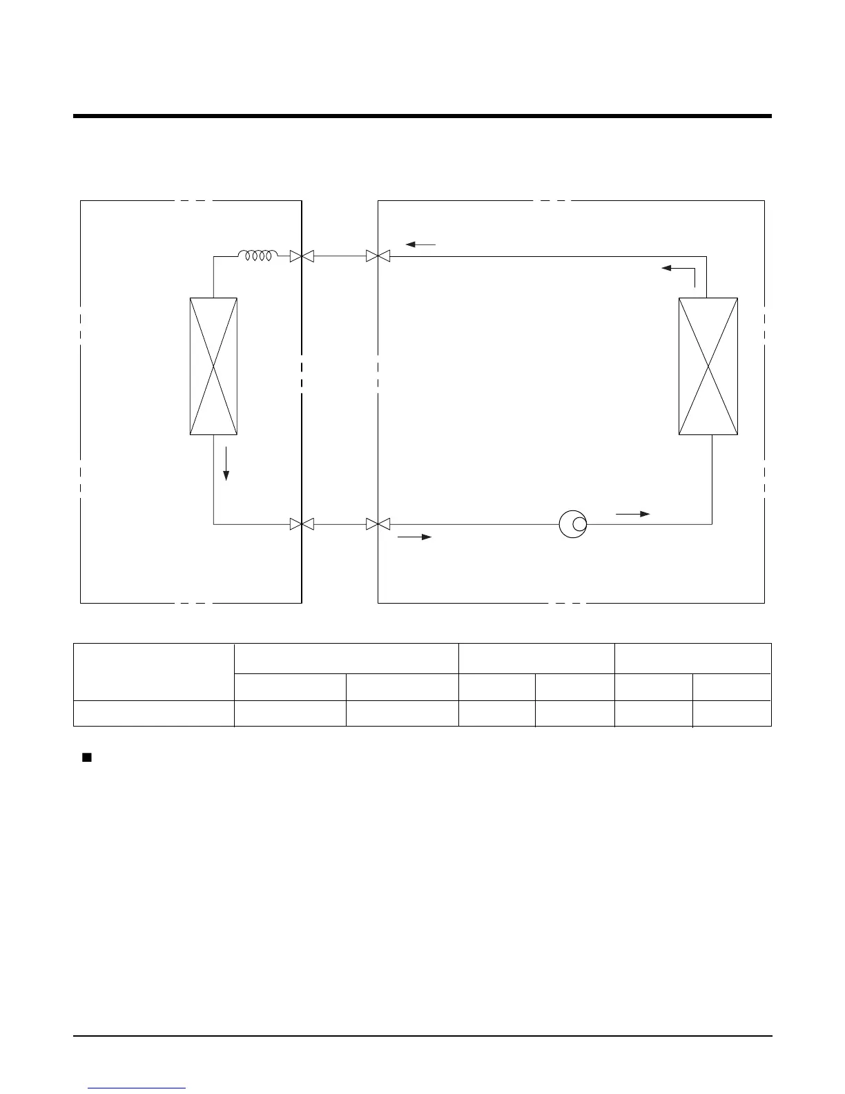
LB-F3660CL
( Rated performance for refrigerant line length of: 5m)
For installation over rated distance, 70g of refrigerant should be added for each meter.
ex) When installed at a distance of 15m, 700g of refrigerant should be added.
(15-5) x 70g = 700g
Pipe size(Diameter: ø) Piping length(m) Elevation(m)
MODEL
Gas Liquid Rated Max. Rated Max.
LB-F3660CL 5/8" 3/8" 5 25 5 15
INDOOR UNIT OUTDOOR UNIT
HEAT
EXCHANGER
(CONDENSER)
HEAT
EXCHANGER
(CONDENSER)
COMPRESSOR
GAS SIDE
LIQUID SIDE
CAPILLARY TUBE

Related product manuals