EasyManua.ls Logo

LG MULTI F A5UW40GFA0 - Page 292

LG MULTI F A5UW40GFA0
369 pages
Print Icon
To Next Page IconTo Next Page
To Next Page IconTo Next Page
To Previous Page IconTo Previous Page
To Previous Page IconTo Previous Page
Loading...
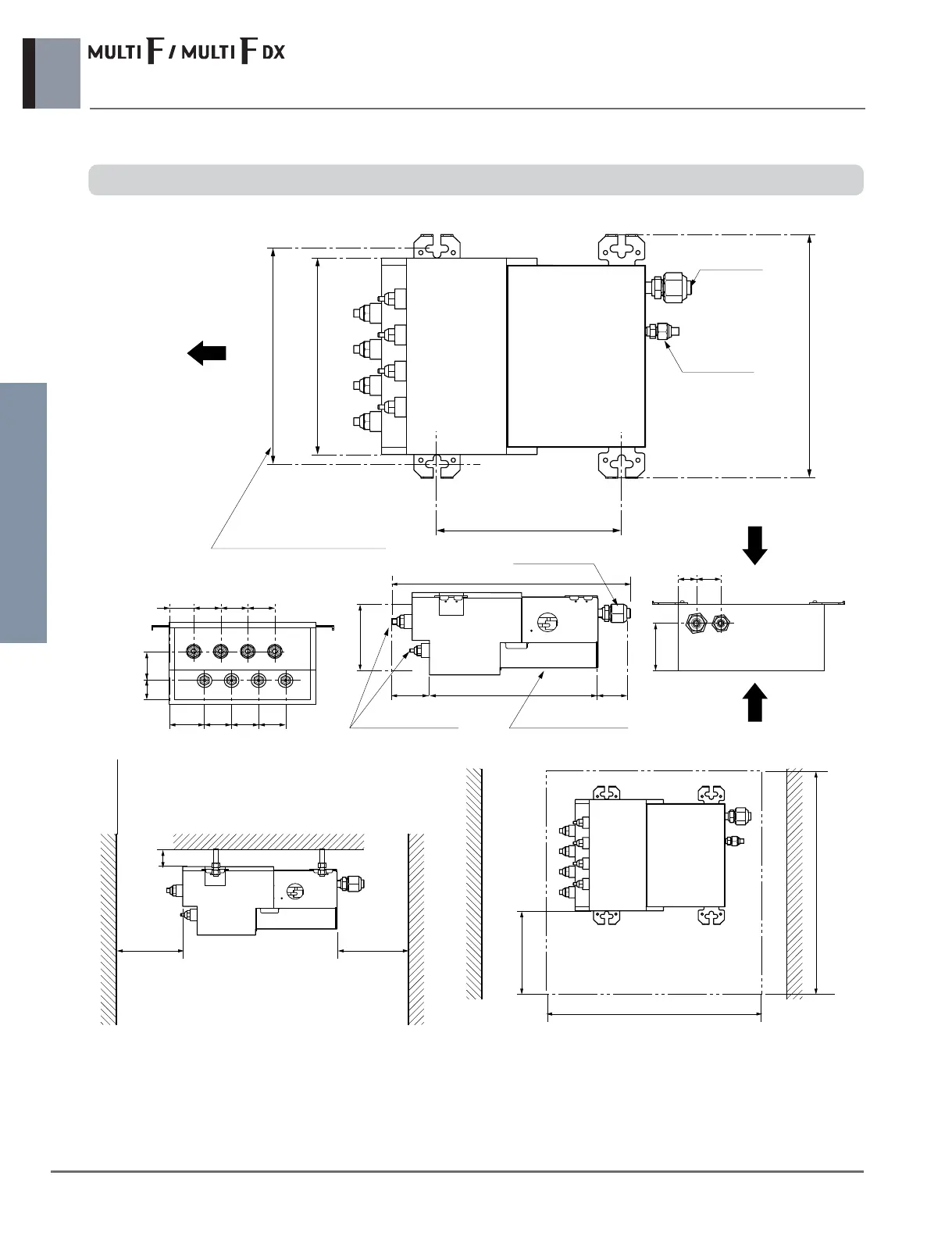
4. BD Unit (Distributor Box)
2 _ Heat pump 50Hz/R410A
Part 2 Product data_Outdoor units
Models : PMBD3620, PMBD3630, PMBD3640
4.2 Dimensions
5030
(111)
Min 30
Min 400
Min 400
(Servicing space)
(Side view)
(Bottom view)
(Unit : mm)
B
C
505050
505050
(56)
50
(38)
(36)
Main Pipe
Cover ControlBranch Pipe
60300
432
72
(150)
Inspection opening
600
250 or more
600
(298)
250
Ø19.05
Ø9.52
Suspension bolt pitch.
245
(337)
A
(EEV service)
(Controller service)

Related product manuals