EasyManua.ls Logo

LG MULTI V ARNU09GTRC4 - Piping Diagrams

LG MULTI V ARNU09GTRC4
520 pages
To Next Page IconTo Next Page
To Next Page IconTo Next Page
To Previous Page IconTo Previous Page
To Previous Page IconTo Previous Page
Loading...
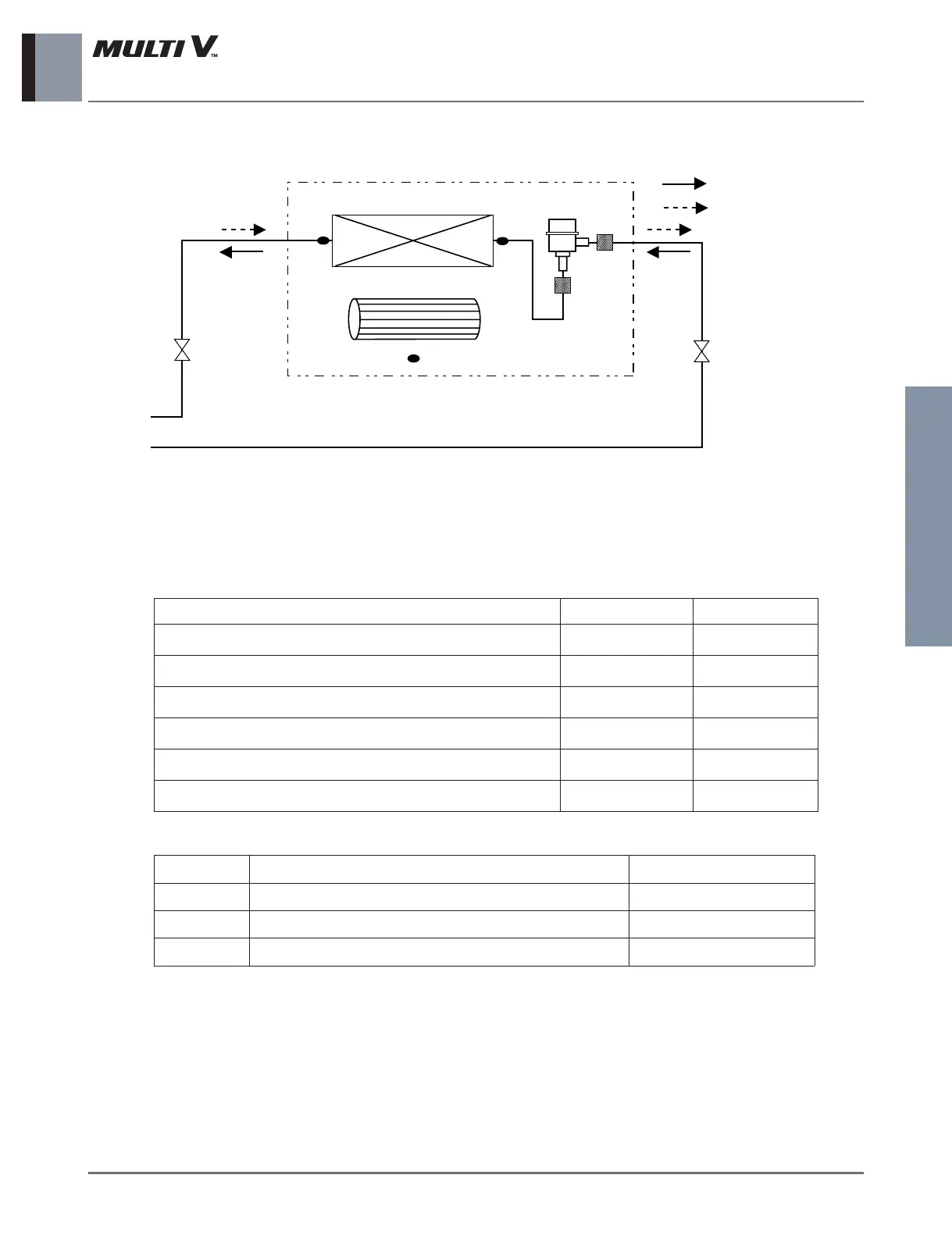
Indoor unit
Ceiling Concealed Duct_Built in (Low Static) _ 5
Heat Exchanger
Sirocco Fan
Th3
Th2
Th1
lndoor unit
EEV
:Heating
:Cooling
Filter
Filter
Refrigerant pipe connection port diameter
MODEL GAS LIQUID
ARNU07GB3G4+PBSGB30(Acc'y), PBSC30(Acc'y) Ø12.7(1/2) Ø6.35(1/4)
ARNU09GB3G4+PBSGB30(Acc'y), PBSC30(Acc'y) Ø12.7(1/2) Ø6.35(1/4)
ARNU12GB3G4+PBSGB30(Acc'y), PBSC30(Acc'y) Ø12.7(1/2) Ø6.35(1/4)
ARNU15GB3G4+PBSGB30(Acc'y), PBSC30(Acc'y) Ø12.7(1/2) Ø6.35(1/4)
ARNU18GB4G4+PBSGB40(Acc'y), PBSC40(Acc'y) Ø12.7(1/2) Ø6.35(1/4)
ARNU24GB4G4+PBSGB40(Acc'y), PBSC40(Acc'y) Ø15.88(5/8) Ø9.52(3/8)
[Unit: mm(inch)]
4. Piping Diagrams
Indoor Units
LOC. Description PCB Connector (Color)
Th1 Thermistor for room air temperature CN-ROOM (Yellow)
Th2 Thermistor for pipe in temperature CN-PIPE/IN (White)
Th3 Thermistor for pipe out temperature CN-PIPE/OUT (Red)

Table of Contents

Related product manuals