EasyManua.ls Logo

LG MULTI V ARNU303NJA4 - Dimensions - Vertical Air Handling Unit NK Chassis

LG MULTI V ARNU303NJA4
94 pages
To Next Page IconTo Next Page
To Next Page IconTo Next Page
To Previous Page IconTo Previous Page
To Previous Page IconTo Previous Page
Loading...
33
Installation Manual
Due to our policy of continuous product innovation, some specifications may change without notification.
©LG Electronics U.S.A., Inc., Englewood Cliffs, NJ. All rights reserved. “LG” is a registered trademark of LG Corp.
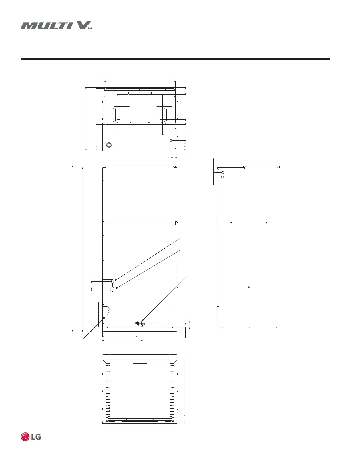
GENERAL DATA
Dimensions – Vertical Air Handling Unit NK Chassis
Top View
Front View
Bottom View
Side View
24
21-1/4
55-13/16
55-3/16
25
14-1/4
1-1/2
13/16
4-7/8
15/16 15/16
2-7/16
4-7/8
3-5/16
11-15/16
13-7/16
15/16
1-5/16
2-7/16 2-7/1620-1/4
1
2-1/4 18-3/16
Unit: inch
1-15/16
2-1/16
2-3/16
12-1/8
1-5/81-9/16
2-9/16
4-11/16
1-9/16
Liquid pipe
Vapor pipe
Drain connection
for upflow application
Drain connection
for horizontal left
application

Table of Contents

Related product manuals