EasyManua.ls Logo

LG Multi V ARNU483M3A4 - Vertical Air Handling Unit NJ Chassis

LG Multi V ARNU483M3A4
94 pages
To Next Page IconTo Next Page
To Next Page IconTo Next Page
To Previous Page IconTo Previous Page
To Previous Page IconTo Previous Page
Loading...
81
Installation Manual
Due to our policy of continuous product innovation, some specifications may change without notification.
©LG Electronics U.S.A., Inc., Englewood Cliffs, NJ. All rights reserved. “LG” is a registered trademark of LG Corp.
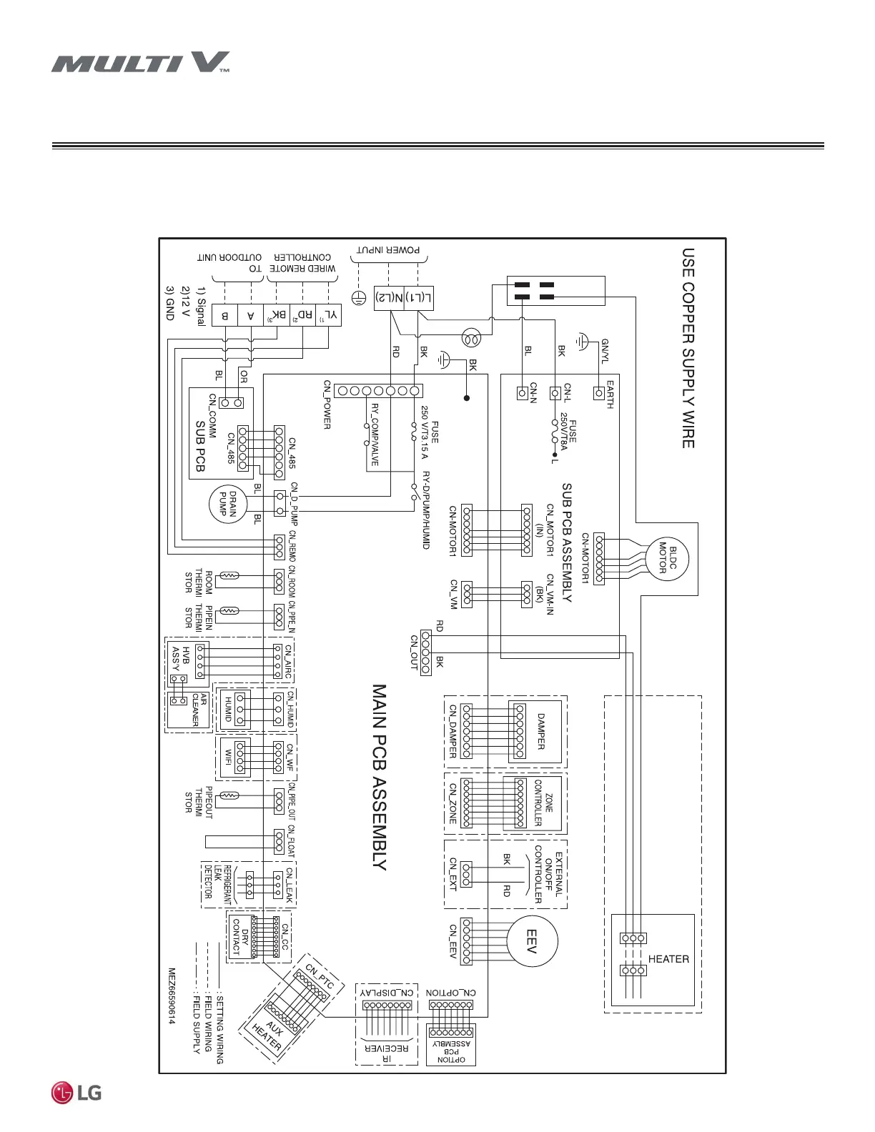
WIRING
Vertical Air Handling Unit NJ Chassis
Figure 76: Vertical Air Handling Unit NJ Chassis Wiring Diagram.
Optional Connections
Figure 76 shows the control board for the NJ chassis. Connect optional equipment to the control board as required for your system.
03/2019

Table of Contents

Other manuals for LG Multi V ARNU483M3A4

Related product manuals