EasyManua.ls Logo

LIND DC Power Adapters - Page 64

LIND DC Power Adapters
146 pages
Print Icon
To Next Page IconTo Next Page
To Next Page IconTo Next Page
To Previous Page IconTo Previous Page
To Previous Page IconTo Previous Page
Loading...
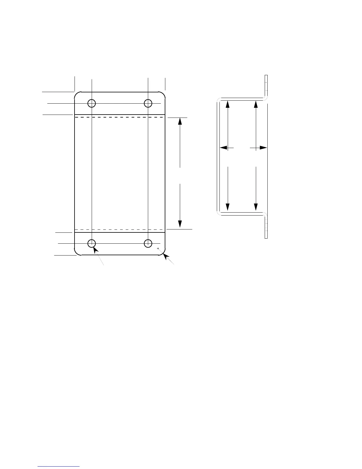
NOTES:
DIMENSIONS IN INCHES
MATERIAL: .062 ALUMINUM
BLACK ANODIZED OR
BLACK POWDER COAT
MINIMUM BEND RADIUS
DIMENSIONS +/- .02
FBMTL-00335
70W PLASTIC CASE
BRACKET
4/7/03
0.00
.375
1.625
2.00
0.00
.25
.50
2.45 REF.
.15R (4X)
.17D (4X)
3.07
3.32
3.57
LIND ELECTRONICS, INC.
6414 CAMBRIDGE ST.
MINNEAPOLIS, MN 55426
(612) 927-6303
FAX (612) 927-7740
1.05
2.45
REF.
2.40
MIN.