EasyManua.ls Logo

LS tractor MT357 - Page 164

LS tractor MT357
264 pages
Print Icon
To Next Page IconTo Next Page
To Next Page IconTo Next Page
To Previous Page IconTo Previous Page
To Previous Page IconTo Previous Page
Loading...
4 -26
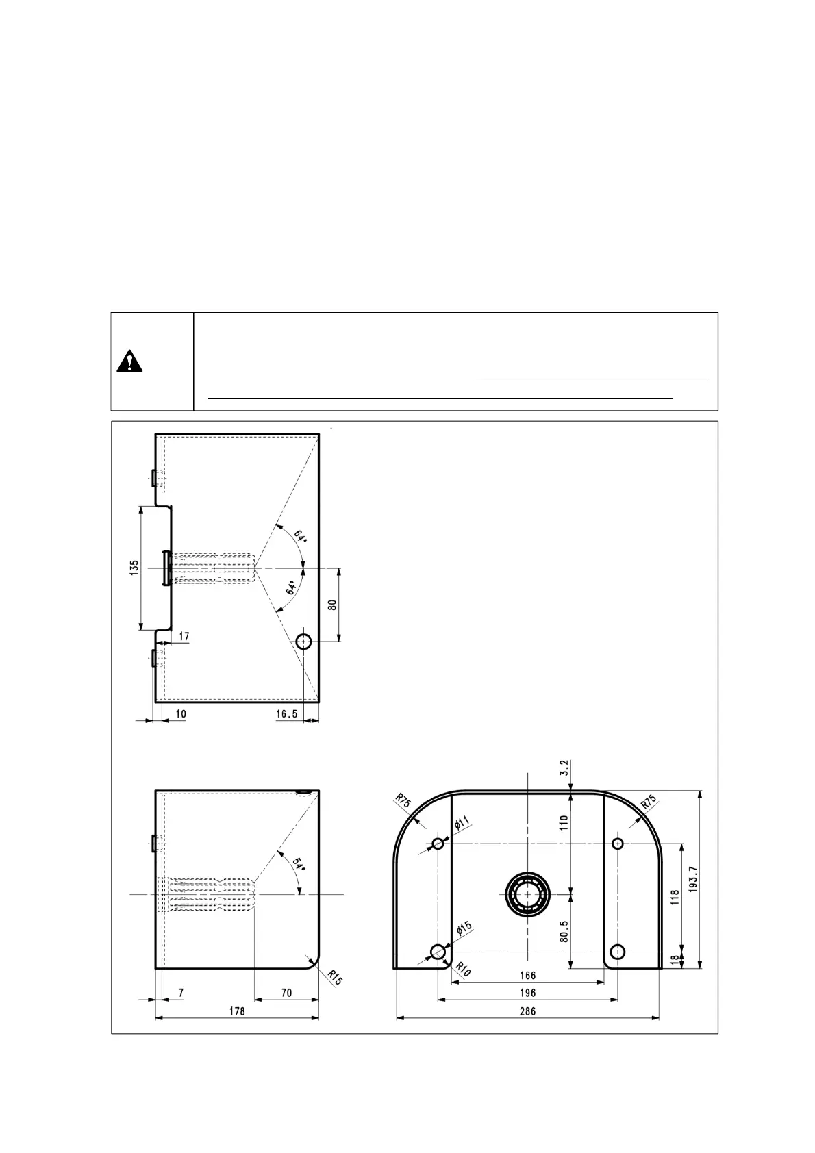
Attaching power take-off(PTO) drive shaft
When connecting PTO drive shaft to the PTO shaft and implement, make sure to check that the
locking pin of the PTO drive shaft is locked in place.
When attaching PTO drive shaft, refer to the drawings as below for safety clearance zone.
After installing implement(s), check the followings according to the position of the 3-point linkage.
- check the articulation angle of the PTO drive shaft and rotating noise is suitable.
- check the interference with PTO safety cover and other structure.
- check the effective engaging length of the PTO drive shaft.
The steep inclination of the PTO drive shaft makes a loud noise and cause a
failure of the PTO driveline. When working in the field, do not lift up the rear
implement over the manufacture’s limitation that the maximum articulation angle
of the PTO drive shaft is 18 degree when the PTO drive shaft is rotating.
Caution

Table of Contents

Related product manuals