EasyManua.ls Logo

LSIS XBC-DR20SU - Fail Safe Circuit

LSIS XBC-DR20SU
384 pages
Print Icon
To Next Page IconTo Next Page
To Next Page IconTo Next Page
To Previous Page IconTo Previous Page
To Previous Page IconTo Previous Page
Loading...
Chapter 13 Installation and Wiring
13 3
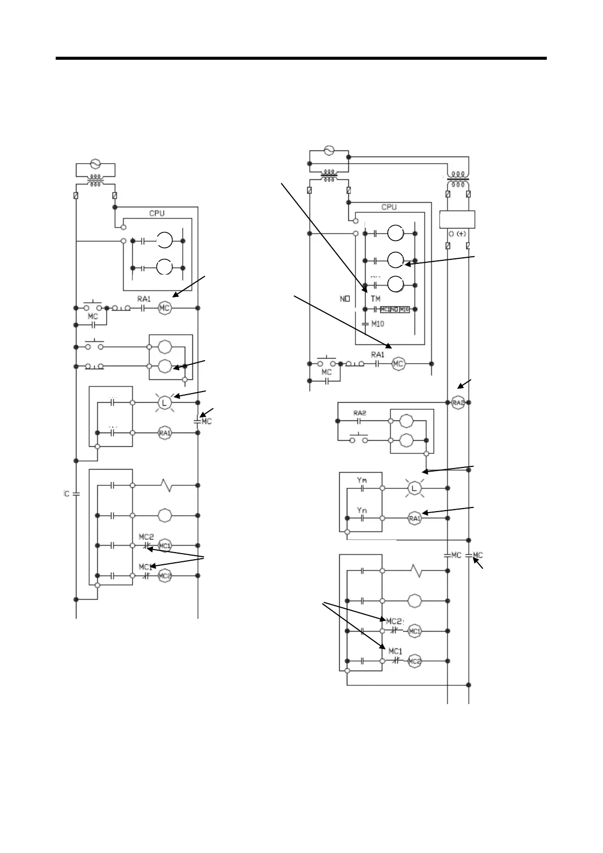
13.1.1 Fail safe circuit
(1) example of system design (In case of not using ERR contact point of power module)
In case of AC In case of AC . DC
Check direct
current
Signal input
Timer setting
which DC input
signal is
configured.
Voltage relay
equipped
Output for warning
(Lamp or buzzer)
RUN by F009C
Power off to output
device
Output for warning
(Lamp or buzzer)
Power Off to
output device
Configure part that
lead opposite operation
or breakdown such as
interlock circuit
forward, reverse
revolution by external
interlock circuit
(Emergency
stop,
stop by limit
switch)
Emergency stop,
Stop by limit
Start sequence of power
In case of AC
(1) Turn on power
(2) Run CPU.
(3) Turn on start switch
(4) Output device runs by program through
magnetic contactor (MC) [On]
Start sequence of power
In case of AC DC
(1) Run CPU after power is on
(2) Turn on RA2 as DC power on
(3) Turn on timer after DC power is stable.
(4) Turn on start switch
(5) Output device runs by program through
magnetic contactor (MC) [On]
F0045
F009C
F0045
Pm
Pm
Pm
F009C
Pm
Pm
Tm
Pm
Pm
PLC RUN output
Start available as
RA1
Run by F009C
Trans
Fuse
Start
switch
Stop
SW
Input module
Program
Output module
Output module
Output module
Output module
Program
Start
switch
Stop
SW
Trans
Fuse
Trans
Fuse
Fuse
DC power
Power
Power
Pn
www.behaotomasyon.com
www.behaotomasyon.com

Table of Contents

Related product manuals