EasyManua.ls Logo

LSIS XBC-DR40SU - Point Transistor Output Module (Sink Type)

LSIS XBC-DR40SU
384 pages
Print Icon
To Next Page IconTo Next Page
To Next Page IconTo Next Page
To Previous Page IconTo Previous Page
To Previous Page IconTo Previous Page
Loading...
Chapter 7 Input/Output Specifications
7-63
7.5.4 8 point transistor output module (Sink type)
Model
Specification
Transistor output module
XBE-TN08A
Output point
8 point
Insulation method
Photo coupler insulation
Rated load voltage
DC 12 / 24V
Load voltage range
DC 10.2 ~ 26.4V
Max. load voltage
0.5A / 1 point
Off leakage current
0.1 or less
Max. inrush current
4A / 10 or less
Max. voltage drop (On)
DC 0.4V or less
Surge absorber
Zener Diode
Response
time
Off On
1 or less
On Off
1 or less (Rated load, resistive load)
Common method
8 point / COM
Proper cable size
Stranded cable 0.3~0.75 (External diameter 2.8 or less)
Current consumption
40 (when all point On)
External
power
supply
Voltage
DC12/24V 10% (ripple voltage 4 Vp-p or less)
Current
10 or less (DC24V connection)
Operation indicator
Output On, LED On
External connection
method
10 point terminal block connector
Weight
53
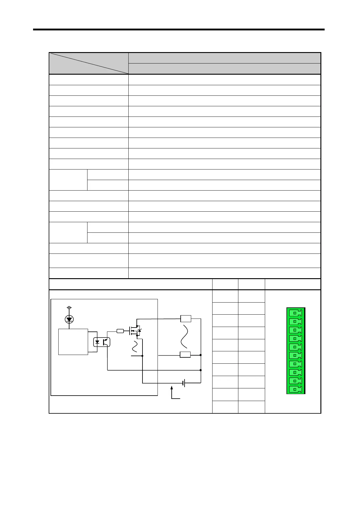
Circuit configuration
No.
Contact
Type
TB01
0
TB02
1
TB03
2
TB04
3
TB05
4
TB06
5
TB07
6
TB08
7
TB09
DC12
/24V
TB10
COM
TB01
TB02
TB03
TB04
TB05
TB06
TB07
TB08
TB09
TB10
Terminal block no.
DC12/24V
R
Internal
circuit
L
L
E
D
TB01
TB09
L
TB08
TB10
DC5V
www.behaotomasyon.com
www.behaotomasyon.com

Table of Contents

Related product manuals