EasyManua.ls Logo

Lust CDA3000 - Page 14

Lust CDA3000
72 pages
Print Icon
To Next Page IconTo Next Page
To Next Page IconTo Next Page
To Previous Page IconTo Previous Page
To Previous Page IconTo Previous Page
Loading...
2-8
CDA3000 Operation Manual
2 Mechanical installation
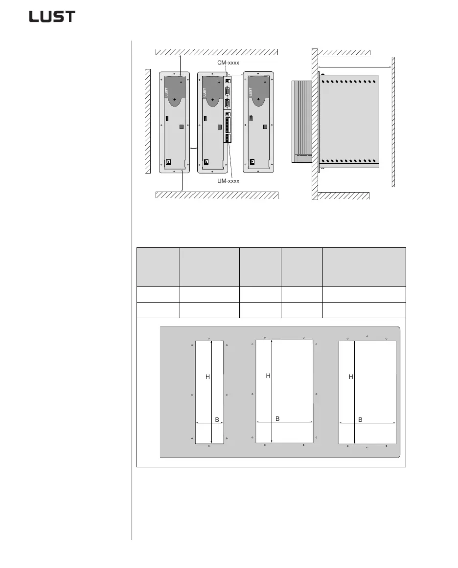
Figure 2.3 Mounting clearances (see Table 2.6)
Dimensions
of break-
through
BG3 BG4 BG5 BG6
W (width) 75 125 175 250
H (height) 305 305 305 365
Table 2.5 Breakthrough for push-through heat sink (dimensions in mm)
F
E
E1
G
F
{{{||
,
,
y
y
{
{
z
z
z
|
|
|
,,,yyyzzz
UM-xxxx
CM-xxxx
,,yyz
{{|
,
,
,
y
y
y
{
{
{
B
H
B
H
B
H

Other manuals for Lust CDA3000

Related product manuals