EasyManua.ls Logo

M Confort CF 2000 - Instalación

M Confort CF 2000
43 pages
Print Icon
To Next Page IconTo Next Page
To Next Page IconTo Next Page
To Previous Page IconTo Previous Page
To Previous Page IconTo Previous Page
Loading...
5. INSTALACIÓN
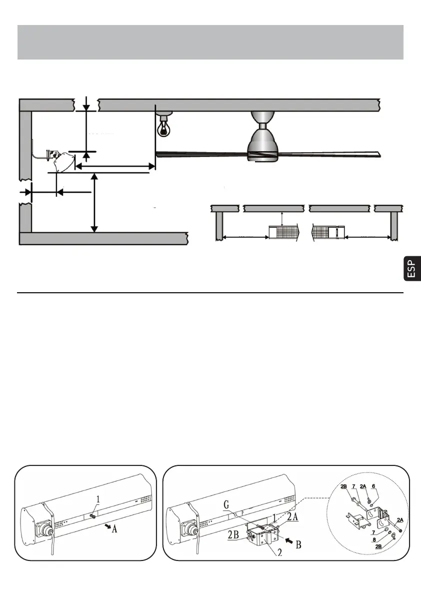
5.1 Distancias de seguridad requeridas para la instalación:
5.2 Lista de componentes:
Medidas en mm
ref
1
2
2A
2B
3
4
5
5A
6
7
8
Nombre
Tornillo
Conjunto de anclajes
Perno + Tuerca
Perno + Tuerca
Perno de expansión
Soporte
Tornillo
Tuerca
Arandela
Arandela
Arandela de resorte
Especificación
M6x16
Aluminio
M6x100+M6
M8x100+M8
M6x60
Acero
M8×60
M8
Ø6.2xØ14x1
Ø8.2xØ16x1
Ø8.2xØ11x1.5
Cantidad
1
1
1
1
2
1
1
1
1
3
1
Localización
En el calefactor
En el paquete
Fijado en el conjunto de soportes n° 2
Fijado en el conjunto de soportes n° 2
En el paquete
En el paquete
En el paquete
Fijado en Nº5 Tornillo M8 * 60
Fijado en el perno nº2A M6 * 100
Fijado en el perno nº 2B y 5
2 piezas fijadas en el perno nº 2B y 1 pieza en el perno 2A
1000 min. a superfícies (ej. mesas, etc).
1000 min. a personas o animales.
1800 min al suelo.
600 min. 600 min.
300 min.
300 min.
300 min.
1500 min.
Ventiladores, luces o instalaciones
NO DEBEN COLOCARSE POR
DEBAJO del calefactor.
1500 min. a objetos inflamables
como cortinas, etc.
5.3. Instalación:
16